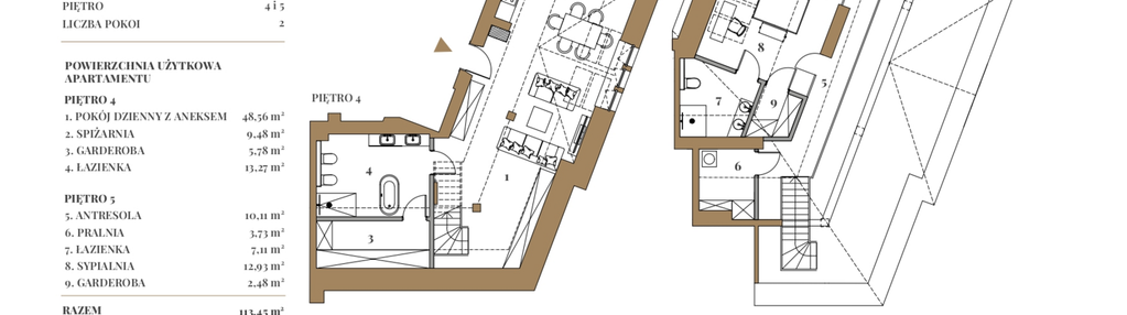
Nowe mieszkanie na sprzedaż 2 pokoje Kraków Stare Miasto, 108,61 m2, 4 piętro - nr 12
Oferta sprzedaży od Buma
Kraków, Stare Miasto, ul. Wenecja 1 (1,4km od centrum Krakowa)

Główne cechy mieszkania
Ważne informacje
Mieszkanie 2 pokojowe
Dodatkowe informacje
Udogodnienia

Klimatyzacja

Winda

Usługi concierge

Inteligentny dom

Usługi w budynku

Sala fitness

Sauna
Przyroda

Park
Inwestycja
Wenecja 1
małopolskie, Kraków, Stare Miasto
W centrum Krakowa kryje się miejsce, które przez lata było świadkiem życia artystów tego miasta. Wyobraź sobie miejsce, gdzie historia spotyka się z nowoczesnością. To tutaj, na skrzyżowaniu ulic Wenecja i Garncarska, stoi odrestaurowana kamienica, zachwycająca swoim pięknem oraz precyzyjnym dopracowaniem każdego szczegółu. Miejsce, w którym przeszłość i sztuka łączą się harmonijnie z nowoczesnym, dyskretnym luksusem. To właśnie Wenecja 1. Kamienica zaprojektowana w 1911 r. przez Kazimierza Hroboniego, na zamówienie Piotra Stachiewicza, znanego artysty malarza, twórcy grafik i plakatów. Powstał elegancki, czterokondygnacyjny budynek w zabudowie pierzejowej, dawniej zwany domem „Pod Lwem”, a także „Pod św. Markiem”, którego fasada wychodzi na dzisiejszy skwer im. gen. Zygmunta Zielińskiego. To tutaj, w przestrzeniach pełnych światła, swoje dzieła tworzyli nie tylko Piotr Stachiewicz, ale także inni wybitni artyści, jak malarz Antoni Procajłowicz oraz Władysław Żeleński – kompozytor, pedagog, dyrygent i dyrektor krakowskiego Konserwatorium Towarzystwa Muzycznego. Po II wojnie światowej tworzył tu również Jan Świerczyński, utalentowany malarz i rzeźbiarz, który zostawił swój artystyczny ślad, zajmując pracownię na poddaszu. Miejsce z historią Wszystkie zabytkowe elementy pochodzące z okresu budowy kamienicy zostały zachowane, zakonserwowane i odpowiednio wyeksponowane. Jednocześnie wymieniono wszystkie instalacje, stropy mieszkań i stolarkę, część z nich odrestaurowano z użyciem technik konserwacji zabytków, by zapewnić nowoczesne udogodnienia. Dzięki temu zabytkowa nieruchomość przy ul. Wenecja 1 odzyskała swój dawny blask. W samym centrum Królewskiego Miasta Wenecja 1 to prestiżowa inwestycja, składająca się z zaledwie trzynastu wyjątkowych apartamentów o powierzchni od 75 do 138 m², co zapewnia kameralność i ekskluzywność. Z apartamentów roztacza się widok na urokliwe, historyczne centrum Krakowa. Panorama obejmuje majestatyczny Wawel oraz Kopiec Kościuszki, oferując szeroką perspektywę na południe i okoliczne zabytki. Komfort Wenecja 1 to wyjątkowy projekt, stworzony z myślą o osobach ceniących wysoką jakość materiałów, staranność wykończenia i niepowtarzalną estetykę. W kamienicy zostało zachowanych wiele historycznych elementów, a każdy apartament został zaprojektowany tak, aby zapewnić maksymalny komfort i wygodę. Apartamenty wyróżniają się odnowionymi dekoracyjnymi detalami oraz drewnianą stolarką okienną. Na przyszłych mieszkańców czekać będzie szereg udogodnień.
Dostępne mieszkania w tej inwestycji
| Nazwa | Rzut | Pokoje | Powierzchnia | Piętro | Cena | Status |