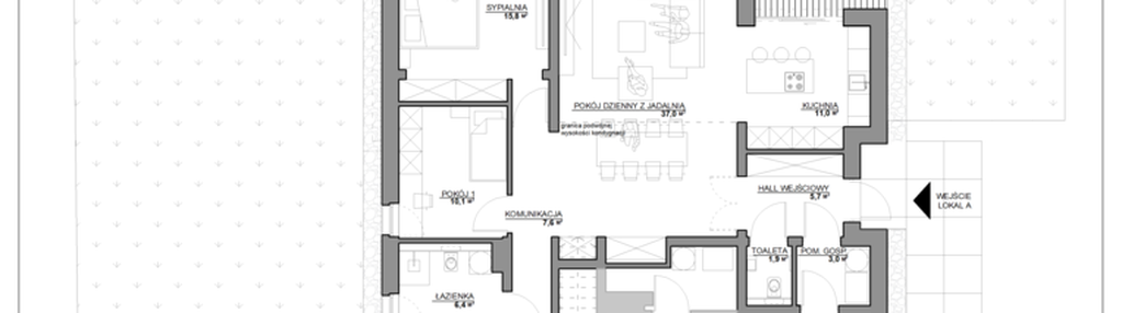
Nowe mieszkanie na sprzedaż 4 pokoje Łódź Bałuty, 110 m2, parter - nr 2A
Oferta sprzedaży od ATJ INVESTMENTS
Łódź, Julianów-Marysin-Rogi, ul. Bema 3 (6,2km od centrum Łodzi)

Główne cechy mieszkania
Ważne informacje
Mieszkanie 4 pokojowe
Dodatkowe informacje
Udogodnienia

Inteligentny dom
Przyroda

Park

Las
Inwestycja
Nove Bema
łódzkie, Łódź, Bałuty, Julianów-Marysin-Rogi
Nowe miejsce na mapie Łodzi... nove bema to nowe miejsce na mapie łódzkiego Julianowa - wyjątkowe osiedle zaprojektowane z myślą o tych, którzy cenią sobie połączenie spokoju z miejskim stylem życia, wyróżniające się: - kameralnością - to tylko 3 dwulokalowe budynki, w których znajdzie się 6 przestronnych apartamentów, położone na działce o powierzchni ponad 3.000 m2, dzięki czemu do apartamentów na parterze przynależą ogrody o powierzchni od 268 do 475 m2, a do tych na I piętrze przynależą przestronne tarasy o powierzchni ponad 40 m2, - wysokim standardem wykonania oraz materiałami najwyższej jakości obejmującym m.in: aluminiową stolarkę okienną z dużymi przeszkleniami okiennymi, pompy ciepła, ogrzewanie podłogowe, instalację inteligentnego domu; w apartamentach zlokalizowanych na parterze dodatkowym atutem jest dwukondygnacyjny salon połączony z jadalnią i aneksem kuchennym, - nowoczesną architekturą i dbałością o walory estetyczne, a także funkcjonalnością zaprojektowanych powierzchni, - doskonałą lokalizacją w prestiżowej dzielnicy, oferującą zarówno szybką komunikację z centrum miasta z drogami wylotowymi, jak i bliski dostęp do terenów rekreacyjnych. Wyjątkowe kameralne osiedle... Na terenie osiedla znajdować się będą 3 dwulokalowe budynki, w których znajdzie się 6 nowoczesnych i przestronnych apartamentów. Dostępne są dwa rodzaje apartamentów: - o powierzchni 110 m2, usytuowane na parterze każdego z budynków, otoczone są ogrodami o powierzchni od 380 do 475 m2; tym, co je wyróżnia jest dwukondygnacyjny salon o wysokości 6m z przeszkloną fasadą i wystawą okienną na 3 kierunki świata; - o powierzchni 114,70 m2, usytuowane na I piętrze każdego z budynków, z dużymi tarasami o powierzchni ponad 40 m2 oraz wystawą okienną na 4 kierunki świata. Centralnym punktem każdego mieszkania jest salon z jadalnią oraz otwartą kuchnią, zaś wysokie przeszklenia okienne sprawią, że wnętrza apartamentów będą przestronne oraz odpowiednio doświetlone. Dbając o komfort mieszkańców zadbaliśmy także o odpowiednią ilość miejsc do parkowania - do każdego apartamentu przewidziane jest miejsce postojowe w garażu oraz po 2 dodatkowe zewnętrzne miejsca postojowe dla mieszkańców i ich gości. Każdy apartament posiada odrębne wejście, dzięki czemu mieszkańcy będą mieli zapewnione poczucie prywatności. Komfort i jakość... nove bema to miejsce stworzone z myślą o tych, którzy cenią sobie wygodę komfort oraz bezpieczeństwo, a także wysoki standard wykończenia i nowoczesny design. Budynki charakteryzują się harmonijną architekturą, prostą bryłą, dużymi przeszkleniami okiennymi oraz doskonałym układem przestrzennym i dbałością o detale. Osiedle będzie zamknięte oraz objęte monitoringiem, co zapewni poczucie bezpieczeństwa mieszkańców. Dbając o najwyższy standard wykończenia przewidziano aluminiową stolarkę okienną, w tym dużą przeszkloną dwupoziomową fasadę w mieszkaniach położonych na parterze. Każdy apartament posiada wystawę okienną z ekspozycją na 3 lub 4 kierunki świata, co sprawia że jego wnętrze będzie przestronne i odpowiednio doświetlone. Natomiast zaprojektowany rozkład pomieszczeń zapewni dużą swobodę aranżacji, co ułatwi stworzenie przyjaznej przestrzeni spełniającej wszystkie potrzeby najbardziej wymagających Klientów. Każdy apartament będzie wyposażony w system smart home, który zapewni niezawodne i efektywne sterowanie instalacjami oraz urządzeniami domowymi. We wszystkich apartamentach źródłem ogrzewania będą pompy ciepła.
Dostępne mieszkania w tej inwestycji
| Nazwa | Rzut | Pokoje | Powierzchnia | Piętro | Cena | Status |