Nowe mieszkanie na sprzedaż 3 pokoje Łódź Bałuty, 64,75 m2, 2 piętro - nr B.11
Oferta sprzedaży od Optimum Property
RezerwacjaŁódź, Bałuty, Bałuty-Doły, ul. Górnicza 12/14 (4,1km od centrum Łodzi)

Główne cechy mieszkania
Ważne informacje
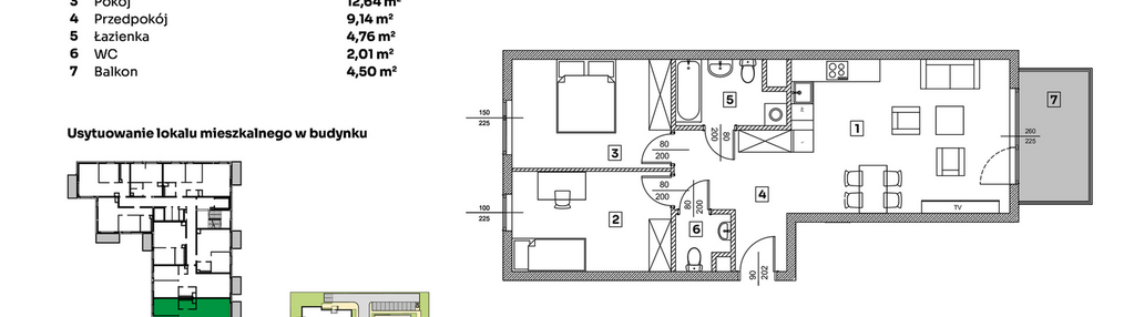
Mieszkanie 3 pokojowe
Dodatkowe informacje
Udogodnienia

Usługi w budynku

Plac zabaw

Winda
Przyroda

Park
Inwestycja
Parkove Love
łódzkie, Łódź, Bałuty, Bałuty-Doły
Apartamenty Parkove Love to wyjątkowa inwestycja adresowana do osób, które cenią wysoki standard nieruchomości oraz komfort codziennego życia. W dwóch kameralnych budynkach położonych w zielonej części Łodzi, przy ul. Górniczej zaprojektowaliśmy funkcjonalne mieszkania o powierzchniach od 30 do 94 m2 oraz lokale użytkowe. Wszystkie mieszkania na piętrach posiadają balkony lub tarasy. Wyjątkowa lokalizacja inwestycji sprawia, że z większości będzie można podziwiać zieloną panoramę Parku im. Szarych Szeregów. Natomiast do mieszkań na parterze będą przynależały prywatne zielone tarasy, które gwarantują niezwykle atrakcyjną dodatkową przestrzeń do spędzania wolnego czasu i odpoczynku bez potrzeby wychodzenia z mieszkania! Twój wymarzony adres Tutaj lokalizacja gra pierwsze skrzypce! Inwestycja Parkove Love powstaje w wyjątkowym miejscu, w bezpośrednim zielonym sąsiedztwie Parku im. Szarych Szeregów. Park jest tu dosłownie na wyciągnięcie ręki, a w nim klimatyczne alejki spacerowe, malownicze trasy biegowe i ogromna przestrzeń do spędzania wolnego czasu na powietrzu. Nie brakuje miejsca do błogiego lenistwa czy organizacji pikników, zarówno w centralnej części parku, jak i na uboczu w cieniu drzew. Kameralna okolica gwarantuje spokój i bezpieczeństwo, a sama ul. Górnicza, która zostanie zrewitalizowana w 2024 roku, umożliwia doskonałą komunikację w każdym kierunku Łodzi. Do Manufaktury możesz wybrać się spacerem, do ul. Strykowskiej dojedziesz w zaledwie 5 minut, a do ul. Piotrkowskiej i centrum w 10-15 minut! Zadbaliśmy o wygodę mieszkańców, dlatego w budynkach zaprojektowaliśmy ciche windy, nowoczesne oświetlenie korytarzy, duży komfortowy dwupoziomowy garaż podziemny z podgrzewanym zjazdem oraz przestronne pomieszczenia gospodarcze i boxy na rowery. Na terenie inwestycji powstaną również miejsca do ładowania samochodów elektrycznych oraz stacja naprawy rowerów. Całości dopełni eleganckie wykończenie części wspólnych, elewacja z ponadczasowymi elementami drewna i szkła oraz nasadzenia zieleni.
Dostępne mieszkania w tej inwestycji
| Nazwa | Rzut | Pokoje | Powierzchnia | Piętro | Cena | Status |