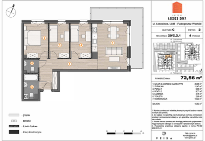
Nowe mieszkanie na sprzedaż 4 pokoje Łódź Bałuty, 72,56 m2, 2 piętro - nr 20 - C2.1
Oferta sprzedaży od Peira
RezerwacjaŁódź, Radogoszcz, ul. Okoniowa (7,2km od centrum Łodzi)

Główne cechy mieszkania
Opis nieruchomości o powierzchni 72,56 m2
Mieszkanie w inwestycji: Osiedle Łososiowa
2 miejsca: hala + teren
Ważne informacje
Mieszkanie 4 pokojowe
Dodatkowe informacje
Udogodnienia

Winda

Plac zabaw

Rowerownia
Przyroda

Park
Inwestycja
Osiedle Łososiowa
łódzkie, Łódź, Bałuty, Radogoszcz
Osiedle Łososiowa zostanie zrealizowana w jednym z najbardziej lubianych przez łodzian miejsc - Radogoszcz Wschód. Na przedłużeniu ulicy Okoniowa w sąsiedztwie znanego miejsca rekreacyjnego powstanie osiedle, które w pierwszym etapie obejmie dwa budynki ośmiopiętrowe, jednoklatkowe z 86 lokalami każdy. Do wyboru będą mieszkania 2, 3 i 4 pokojowe o powierzchniach od 27,56 m2 do 83,90 m2.Na terenie znajdą się plac zabaw i miejsca postojowe. Oprócz tego w budynkach wybudowane zostaną hale garażowe z miejscami dla aut, motorów i rowerów a także pomieszczenia gospodarcze. Zakończenie inwestycji planowane jest na początek 2025 roku. Więcej informacji można uzyskać kontaktując się z nami poprzez wysłanie formularza.
Dostępne mieszkania w tej inwestycji
| Nazwa | Rzut | Pokoje | Powierzchnia | Piętro | Cena | Status |