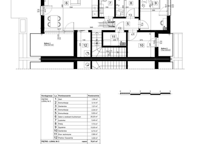
Nowe mieszkanie na sprzedaż 3 pokoje Łódź Górna, 78,41 m2, 1 piętro - nr B2.1
Oferta sprzedaży od PPHU Jordan Radosław Godlewski
Łódź, Górna, Wiskitno, ul. Paprociowa (8,6km od centrum Łodzi)

Główne cechy mieszkania
Ważne informacje
Mieszkanie 3 pokojowe
Inwestycja
Osiedle Paprociowa
łódzkie, Łódź, Górna, Wiskitno
Osiedle Paprociowa Park to kameralna inwestycja zlokalizowana w spokojnej i cichej okolicy, z dala od zgiełku miasta, a jednocześnie w bardzo dobrej lokalizacji — tuż obok Trasy Górnej, która zapewnia szybki dojazd do centrum Łodzi. Co ważne, mimo bliskości arterii, w samym osiedlu panuje pełen komfort akustyczny — drogi ekspresowej nie słychać. W najbliższym sąsiedztwie znajduje się teren rekreacyjny Stawy Jana, idealny na spacery, rower czy aktywny wypoczynek z rodziną. Całość inwestycji jest ogrodzona i zamknięta, co gwarantuje bezpieczeństwo i prywatność mieszkańców. Budynki zostały wykonane z nowoczesnych, energooszczędnych materiałów, zapewniających trwałość i wysoki standard użytkowania. Do każdego mieszkania przynależy jedno miejsce parkingowe, z możliwością dokupienia drugiego miejsca w późniejszym czasie.
Dostępne mieszkania w tej inwestycji
| Nazwa | Rzut | Pokoje | Powierzchnia | Piętro | Cena | Status |