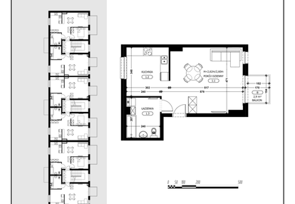
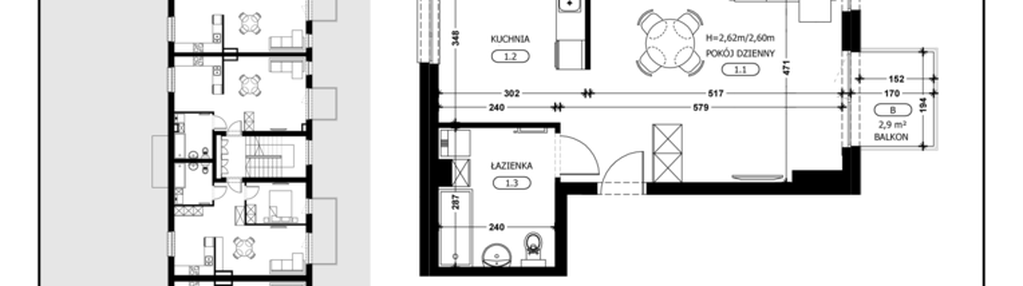
Nowe mieszkanie na sprzedaż 1 pokój Łódź Górna, 41,09 m2, 1 piętro - nr B1-M21
Oferta sprzedaży od Rorbach Development Sp. z o.o.
Łódź, Chojny-Dąbrowa, ul. śląska 39 (4,4km od centrum Łodzi)

Główne cechy mieszkania
Ważne informacje
Mieszkanie 1 pokojowe
Dodatkowe informacje
Udogodnienia

Rowerownia
Przyroda

Park

Staw
Inwestycja
Śląska Park
łódzkie, Łódź, Górna, Chojny-Dąbrowa
Projekt Śląska Park to nowe miejsce na mapie Łodzi zlokalizowane przy ul. Śląskiej 39 Główne atuty inwestycji: - Doskonała lokalizacja - bliskość centrum miasta a zarazem terenów zielonych takich jak ,, Młynek" czy też ,,Stawy Jana" - Zamknięta forma osiedla - dwie bramy wjazdowe, miejsca postojowe na terenie osiedla. - Mieszkania na parterze posiadają ogródki, z kolei lokale powyżej balkony. - Przemyślany i funkcjonalny układ mieszkań w powierzchniach od 27 m2 do 83 m2. - Miejsce na przechowywanie rowerów zamykane na klucz - Nowoczesny charakter osiedla Termin rozpoczęcia prac: I kw. 2024 Termin zakończenia prac: IV kw. 2025 Termin przeniesienia własności: II kw. 2026
Dostępne mieszkania w tej inwestycji
| Nazwa | Rzut | Pokoje | Powierzchnia | Piętro | Cena | Status |