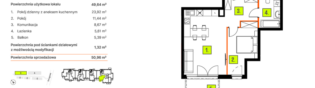
Nowe mieszkanie na sprzedaż 2 pokoje Łódź Bałuty, 50,96 m2, 4 piętro - nr B-A4M2
Oferta sprzedaży od Trei Residential
Łódź, Bałuty, Bałuty-Doły, Smugowa 24 (2,7km od centrum Łodzi)

Główne cechy mieszkania
Ważne informacje
Mieszkanie 2 pokojowe
Inwestycja
Dostępne mieszkania w tej inwestycji
| Nazwa | Rzut | Pokoje | Powierzchnia | Piętro | Cena | Status |