Nowe mieszkanie na sprzedaż 4 pokoje Łódź Górna, 74 m2, parter - nr 1
Oferta sprzedaży od Maxbud Development
Łódź, Górna, Ruda, ul. Tabelowa 46 (6,8km od centrum Łodzi)

Główne cechy mieszkania
Ważne informacje
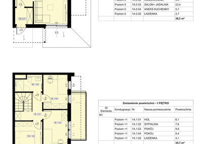
Mieszkanie 4 pokojowe
Dodatkowe informacje
Przyroda

Park

Las
Inwestycja
Rozali Park
łódzkie, Łódź, Górna, Ruda
Nieruchomość położona jest w południowo-wschodniej części Łodzi, w dzielnicy Górna, na osiedlu Ruda Pabianicka. Działka znajduje się w odległości około 900 metrów od ul. Przestrzennej oraz około 10 km od węzła nr 23 na autostradzie A1, co zapewnia wygodny dojazd zarówno do centrum Łodzi, jak i do głównych tras komunikacyjnych regionu. Otoczenie inwestycji charakteryzuje się dobrze rozwiniętym systemem komunikacji publicznej. W pobliżu znajdują się przystanki komunikacji miejskiej przy ul. Przestrzennej oraz ul. Granicznej. W bezpośrednim sąsiedztwie dominuje zabudowa jednorodzinna, co zapewnia kameralny i spokojny charakter okolicy. W kierunku południowym zlokalizowane są atrakcyjne tereny rekreacyjne – Las Popioły oraz Stawy Stefańskiego, które stanowią doskonałe miejsce do spacerów, aktywności sportowej oraz wypoczynku na świeżym powietrzu. W okolicy powstają również nowe, nowoczesne osiedla mieszkaniowe, co dodatkowo podkreśla rozwijający się charakter tej części miasta. Osiedle zaprojektowano w oparciu o przemyślaną koncepcję architektoniczną tzw. „czterolistnej koniczyny”, która zapewnia maksymalną prywatność mieszkańców oraz komfort korzystania z własnej przestrzeni. Duże przeszklenia i nowoczesna stolarka okienna w systemie HS z pakietami trzyszybowymi gwarantują doskonałe doświetlenie pomieszczeń, bardzo dobrą akustykę oraz piękne widoki. Wszystkie pokoje posiadają wyjścia na szerokie balkony, a elegancko wykończone tarasy tworzą spójną i estetyczną przestrzeń całego osiedla. Wysoką jakość inwestycji podkreślają starannie dobrane materiały – elewacje z elementami drewna i kamienia, nowoczesne balustrady oraz energooszczędne rozwiązania. Charakter inwestycji Inwestycja obejmuje 8 budynków w zabudowie bliźniaczej, w których powstało łącznie 16 lokali mieszkalnych. Kameralny charakter zabudowy zapewnia mieszkańcom większą prywatność, komfort oraz przyjazną, spokojną atmosferę osiedla.
Dostępne mieszkania w tej inwestycji
| Nazwa | Rzut | Pokoje | Powierzchnia | Piętro | Cena | Status |