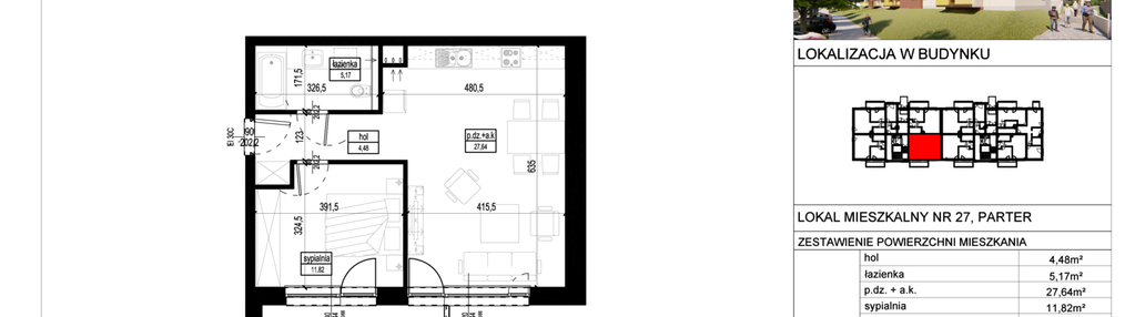
Nowe mieszkanie na sprzedaż 2 pokoje Łódź Górna, 49,11 m2, parter - nr A.27
Oferta sprzedaży od Ezbud Sp. z o.o.
Łódź, Górna, Górniak, ul. Wólczańska 248/248A (1,9km od centrum Łodzi)

Główne cechy mieszkania
Opis nieruchomości o powierzchni 49,11 m2
Mieszkanie w inwestycji: Wólczańska 248 - etap II
Miejsce parkingowe w garażu pod budynkiem A i B – 49.000,00 zł,
Miejsce szerokie (N) 60.000,00 zł,
Boks 3.700 zł/mkw
Miejsce parkingowe w garażu pomiędzy budynkami A i B – 43.000 zł
Ważne informacje
Mieszkanie 2 pokojowe
Dodatkowe informacje
Udogodnienia

Plac zabaw

Winda
Przyroda

Park
Inwestycja
Wólczańska 248 - etap II
łódzkie, Łódź, Górna, Górniak
Nowa inwestycja firmy EZBUD to budowa osiedla przy ul. Wólczańskiej 248 w Łodzi. Osiedle tworzyć będzie zespół 4 budynków mieszkalnych wielorodzinnych – 1 budynek czterokondygnacyjny, 1 budynek pięciokondygnacyjny i 2 sześciokondygnacyjne, wyposażone w windy. Osiedle charakteryzować się będzie prostą zabudową i nowoczesną architekturą. Budynki zostały zaprojektowane zgodnie z najwyższym standardem wpływającym na funkcjonalność, wygodę oraz wysoką jakość użytych materiałów. Budujemy metodą tradycyjną z pustaka ceramicznego. Teren inwestycji będzie ogrodzony, zagospodarowany zielenią z placem zabaw dla najmłodszych mieszkańców. Doskonała lokalizacja nowo powstającego osiedla przekładać się będzie na duży komfort codziennego życia dla wszystkich tych, którzy pragną mieszkać blisko serca Łodzi. W okolicy znajdują się: ulica Piotrkowska, Ogrody Geyera, politechnika Łódzka, hala targowa Górniak. Do aktywnego spędzania wolnego czasu zachęcają znajdujące się w okolicy tereny zielone. Dużym plusem inwestycji są również tereny rekreacyjno-sportowe, placówki kulturalno-oświatowe, centra handlowe oraz zakłady opieki medycznej. https://ezbud.pl/
Dostępne mieszkania w tej inwestycji
| Nazwa | Rzut | Pokoje | Powierzchnia | Piętro | Cena | Status |