Nowe mieszkanie na sprzedaż 3 pokoje Łódź Górna, 62,46 m2, 4 piętro - nr A37
Oferta sprzedaży od Żerański Development
Łódź, Górna, Górniak, ul. Wróblewskiego 2/4 (1,6km od centrum Łodzi)

Główne cechy mieszkania
Ważne informacje
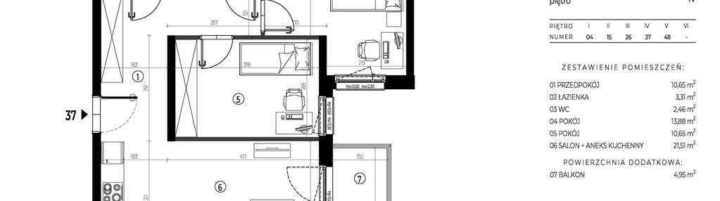
Mieszkanie 3 pokojowe
Dodatkowe informacje
Udogodnienia

Winda
Inwestycja
Wróblewskiego
łódzkie, Łódź, Górna, Górniak
Nowe mieszkania w Łodzi – komfortowe i nowoczesne Inwestycja Wróblewskiego to nowoczesny budynek mieszkalny zlokalizowany przy ul. Wróblewskiego 2/4 w Łodzi, w bezpośrednim sąsiedztwie Politechniki Łódzkiej. To idealna propozycja dla osób poszukujących komfortowego mieszkania w centrum miasta, z dostępem do terenów zielonych i pełnej infrastruktury miejskiej. Dlaczego warto zamieszkać w inwestycji Wróblewskiego? - Bliskość Politechniki Łódzkiej – doskonała lokalizacja dla studentów i pracowników uczelni - Dostęp do licznych terenów zielonych, w tym Parku Reymonta i Ogrodów Geyera - Świetna komunikacja z resztą miasta dzięki rozbudowanej sieci transportu publicznego - W pobliżu znajdują się sklepy, restauracje, siłownie oraz inne punkty usługowe
Dostępne mieszkania w tej inwestycji
| Nazwa | Rzut | Pokoje | Powierzchnia | Piętro | Cena | Status |