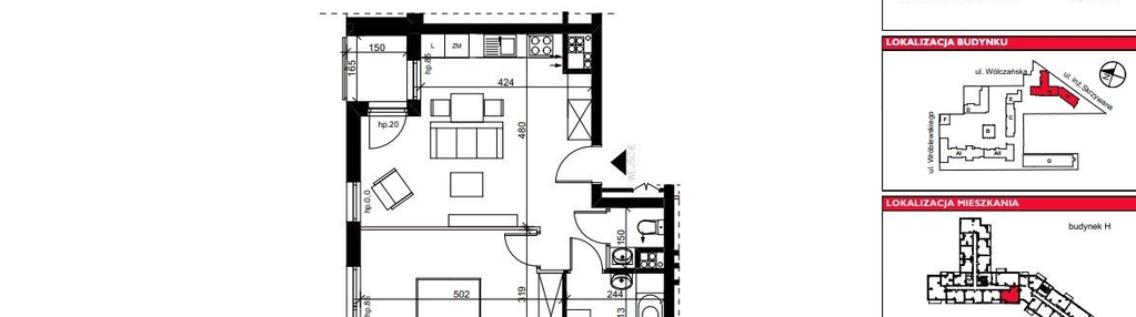
Nowe mieszkanie na sprzedaż 2 pokoje Łódź Górna, 48,01 m2, 3 piętro - nr H.39
Oferta sprzedaży od Platforma Mieszkaniowa
Łódź, Górna, Górniak, ul. Wróblewskiego 6/8 (1,6km od centrum Łodzi)

Główne cechy mieszkania
Ważne informacje
Mieszkanie 2 pokojowe
Dodatkowe informacje
Udogodnienia

Winda

Usługi w budynku

Plac zabaw

Klimatyzacja

Inteligentny dom

Rowerownia
Przyroda

Park
Inwestycja
ART MODERN etap III - bud. H
łódzkie, Łódź, Górna, Górniak
W inwestycji znajduje się prywatny park z placem zabaw wewnątrz osiedla.
Dostępne mieszkania w tej inwestycji
| Nazwa | Rzut | Pokoje | Powierzchnia | Piętro | Cena | Status |