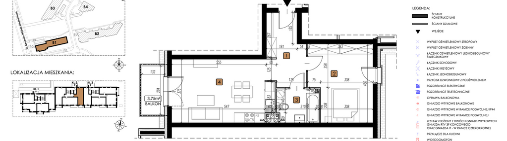
Nowe mieszkanie na sprzedaż 2 pokoje Lublin Kośminek, 51,13 m2, parter - nr B1.M17
Oferta sprzedaży od Lalak Development Sp. z o.o.
Lublin, Kośminek, ul. Generała Witolda Urbanowicza (5,5km od centrum Lublina)

Główne cechy mieszkania
Ważne informacje
Mieszkanie 2 pokojowe
Dodatkowe informacje
Udogodnienia

Winda
Inwestycja
Felin Park II
lubelskie, Lublin, Kośminek
Felin Park II etap I składa się z jednego budynku mieszkalnego-wielorodzinnego, o 4 kondygnacjach nadziemnych, jednej kondygnacji podziemnej mieszczącej parking oraz komórki lokatorskie. Felin Park II to kontynuacja bardzo udanej inwestycji na Felinie, która cieszyła się dużą popularnością wśród klupujących. Kluczem do satysfakcji Klientów jest lokalizacja w przyjaznym otoczeniu, a zaprojektowane budynki wyróżniają się funkcjonalnymi mieszkaniami o metrażach od 40m2 do przeszło 64 m2. Całość dopełnia dbałość o szczegóły, użyteczność i nowoczesna architektura. Dołożyliśmy wszelkich starań, aby w zbudowanych mieszkaniach znaleźli Państwo swoje wymarzone miejsce.
Dostępne mieszkania w tej inwestycji
| Nazwa | Rzut | Pokoje | Powierzchnia | Piętro | Cena | Status |