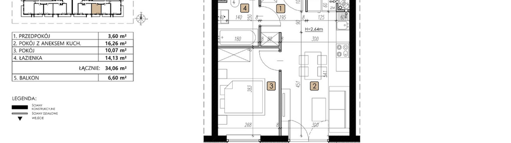
Nowe mieszkanie na sprzedaż 2 pokoje Lublin Węglin Południowy, 34,06 m2, 2 piętro - nr M40
Oferta sprzedaży od Lalak Development Sp. z o.o.
Lublin, Węglin Południowy, ul. Jemiołuszki (6,9km od centrum Lublina)

Główne cechy mieszkania
Ważne informacje
Mieszkanie 2 pokojowe
Dodatkowe informacje
Udogodnienia

Winda
Przyroda

Las
Inwestycja
Jemiołuszki Park
lubelskie, Lublin, Węglin Południowy
Dom to miejsce, w którym chcesz poczuć harmonię i wolność. Jesteśmy przekonani, że Jemiołuszki Park to inwestycja, która spełni wszelkie oczekiwania. Tu, w kameralnej części Lublina, wygoda, minimalizm i niewymuszona elegancja, współgrają ze sobą wprost doskonale. Położone w bliskiej odległości od arterii komunikacyjnych osiedle, gwarantuje spokój i wytchnienie, tak charakterystyczne dla podmiejskich okolic. W I etapie inwestycji zaprojektowano 48 funkcjonalnych mieszkań o zróżnicowanym metrażu, dostosowanym do różnych potrzeb. Swoje wymarzone miejsce znajdzie tu zarówno osoba poszukująca kameralnej kawalerki, jak i rodzina z dziećmi, marząca o przestronnym apartamencie. Bryła budynku utrzymana jest w ponadczasowym, eleganckim stylu. Białą elewację dopełniają charakterystyczne drewniane panele oraz przeszklone balkony. Jemiołuszki Park to jednak nie tylko doskonały design, to również architektura wpisująca się w potrzeby użytkowników. Znajdziesz tu całą gamę rozwiązań, w tym ergonomicznie zaprojektowany parking, oraz rozwiązania zaprojektowane z myślą o osobach niepełnosprawnych, starszych.
Dostępne mieszkania w tej inwestycji
| Nazwa | Rzut | Pokoje | Powierzchnia | Piętro | Cena | Status |