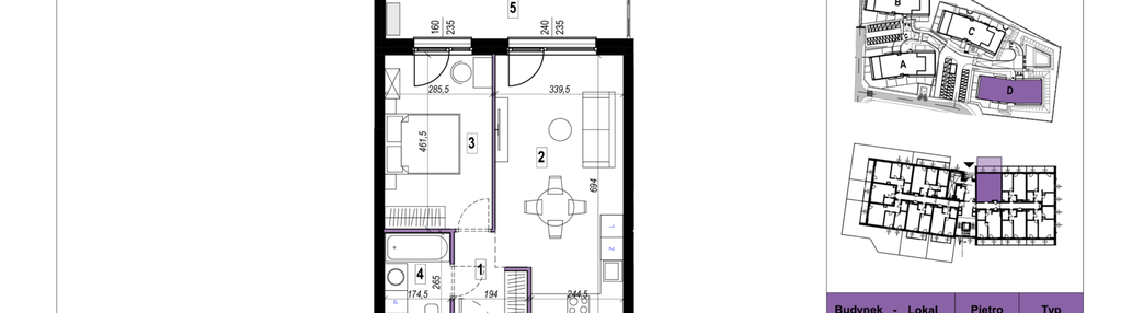
Nowe mieszkanie na sprzedaż 2 pokoje Lublin Szerokie, 44,14 m2, parter - nr D-01
Oferta sprzedaży od Elkabel Development
Lublin, Szerokie, ul. Kazimiery Litwiniukowej (4,8km od centrum Lublina)

Główne cechy mieszkania
Ważne informacje
Mieszkanie 2 pokojowe
Dodatkowe informacje
Udogodnienia

Klimatyzacja

Winda

Plac zabaw
Inwestycja
Szerokie Residence
lubelskie, Lublin, Szerokie
SZEROKIE RESIDENCE to nowoczesna inwestycja zlokalizowana w dzielnicy Szerokie przy ul. Kazimiery Litwiniukowej w Lublinie. Osiedle wyróżnia zielone, spokojne otoczenie doskonale skomunikowane z Centrum, a także z obwodnicą miasta. To komfortowe miejsce do życia, które łączy nowoczesne rozwiązania architektoniczne z harmonią natury. Kameralna inwestycja składa się z czterech trzypiętrowych, nowoczesnych budynków, w których znajduje się jedynie po 31 mieszkań. Projekt wyróżnia się funkcjonalnymi układami oraz dodatkowymi przestrzeniami – prywatnymi ogródkami, przestronnymi tarasami i balkonami. Do dyspozycji Mieszkańców przewidziano elegancką część wspólną oraz bezpieczny plac zabaw dla dzieci. Mieszkania: - funkcjonalne układy od 1 do 3 pokoi - mieszkania o powierzchni od 30 m2 do 74 m2 - mieszkania z balkonami, tarasami lub ogródkami - możliwość indywidualnej aranżacji układu lokali - inteligentny dom Smart Home Udogodnienia: - miejsca parkingowe podziemne lub naziemne, po dwa do mieszkania - bezpieczny, ogrodzony i oświetlony teren - plac zabaw dla dzieci - nowoczesne, cichobieżne windy - klimatyzacja w standardzie - panele fotowoltaiczne i solarne - instalacja do ładowania samochodów elektrycznych - starannie zaaranżowane części wspólne
Dostępne mieszkania w tej inwestycji
| Nazwa | Rzut | Pokoje | Powierzchnia | Piętro | Cena | Status |