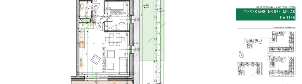
Nowe mieszkanie na sprzedaż 4 pokoje Lublin Ponikwoda, 70,85 m2, parter - nr N3.03
Oferta sprzedaży od Orion Przedsiębiorstwo Produkcyjno-Handlowe
Lublin, Ponikwoda, ul. Narcyzowa (3,6km od centrum Lublina)

Główne cechy mieszkania
Ważne informacje
Mieszkanie 4 pokojowe
Dodatkowe informacje
Udogodnienia

Plac zabaw

Winda

Usługi w budynku

Wózkarnia

Rowerownia
Inwestycja
Osiedle Narcyzowe etap 2
lubelskie, Lublin, Ponikwoda
W siedmiu budynkach zostało zaprojektowanych około 450 mieszkań o powierzchni od 25 do 120m2. Przyszli mieszkańcy będą mieli możliwość wyboru zarówno wśród małych mieszkań tzw. kawalerek, jaki i mieszkań 2-, 3-, 4- lub 5-pokojowych. Plan każdego mieszkania został przygotowany i dopracowany pod kątem funkcjonalności oraz optymalnego wykorzystania dostępnej przestrzeni. Budynki zostaną wyposażone w wygodne windy, którymi w szybkim tempie będzie można dotrzeć zarówno na kondygnacje nadziemne jak i na poziom -1, gdzie znajdą się podziemne miejsca parkingowe oraz komórki lokatorskie. Mając na uwadze wygodę mieszkańców w budynkach znajdą się pomieszczenia zamykane na klucz, w których będzie można bezpiecznie zostawić wózek lub rower. Wszystkie kondygnacje budynków a także zewnętrzne miejsca postojowe, śmietniki czy place zabaw będą w pełni dostępne dla osób niepełnosprawnych. Na terenie osiedla znajdą się także stanowiska postojowe z których będą mogły korzystać osoby niepełnosprawne. W centrum osiedla powstanie bezpieczny plac zabaw dla najmłodszych, a niepowtarzalny klimat podkreślać będzie pięknie zaaranżowana zieleń.
Dostępne mieszkania w tej inwestycji
| Nazwa | Rzut | Pokoje | Powierzchnia | Piętro | Cena | Status |