Nowe mieszkanie na sprzedaż 1 pokój Lublin Śródmieście, 35,49 m2, 4 piętro - nr C4.18
Oferta sprzedaży od Duna Polska Real Estate Sp. z o.o.
Lublin, Śródmieście, ul. Wieniawska 7 (1,2km od centrum Lublina)

Główne cechy mieszkania
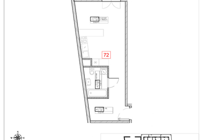
Opis nieruchomości o powierzchni 35,49 m2
Mieszkanie w inwestycji: Rezydencja Ogród Saski etap I i II
Pokój z aneksem kuchennym, hol wejściowy, łazienka, balkon.
Ważne informacje
Mieszkanie 1 pokojowe
Dodatkowe informacje
Udogodnienia

Usługi w budynku

Winda

Rowerownia
Przyroda

Park
Inwestycja
Rezydencja Ogród Saski etap I i II
lubelskie, Lublin, Śródmieście
Rezydencja Ogród Saski to synonim współczesnego luksusu. Elewacja została wykonana z materiałów najwyższej jakości, nadających budynkowi ekskluzywnego charakteru i ponadczasowego stylu. Wizytówką budynku jest wykończenie części wspólnych z wykorzystaniem szlachetnych surowców. Wybudujemy tam 2 etapy projektu mieszkaniowego, w których powstanie 325 lokali mieszkalnych o zróżnicowanej powierzchni, a także 7 lokali usługowych. W ramach przedsięwzięcia deweloperskiego zrealizujemy 2, 9- i 10-kondygnacyjne budynki, o łącznej powierzchni ponad 30 tys. mkw. Do dyspozycji mieszkańców oddany zostanie także podziemny, dwupoziomowy parking z ponad 230 miejscami postojowymi.
Dostępne mieszkania w tej inwestycji
| Nazwa | Rzut | Pokoje | Powierzchnia | Piętro | Cena | Status |