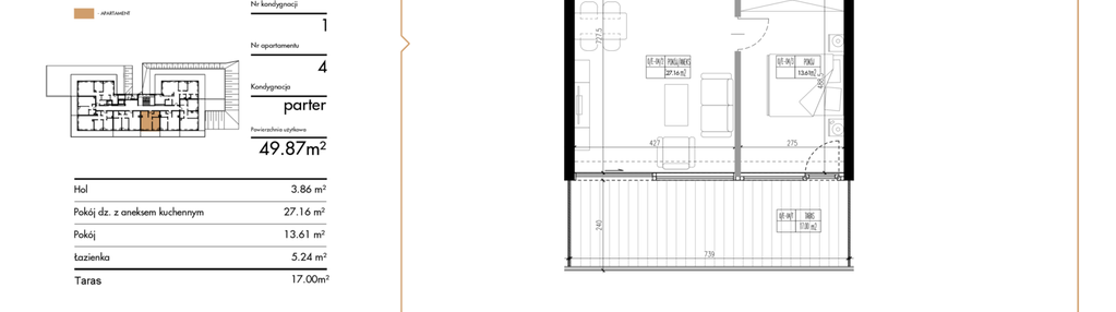
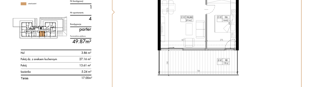
Nowe mieszkanie na sprzedaż 2 pokoje Olsztyn Likusy, 49,87 m2, parter - nr 4
Oferta sprzedaży od D.DOM Sp. z o.o.
RezerwacjaOlsztyn, Likusy, ul. Bałtycka 91C (4km od centrum Olsztyna)

Główne cechy mieszkania
Ważne informacje
Mieszkanie 2 pokojowe
Dodatkowe informacje
Udogodnienia

Winda

Basen

Plac zabaw

Klimatyzacja

Inteligentny dom

Sauna
Przyroda

Las

Jezioro

Park
Inwestycja
Dostępne mieszkania w tej inwestycji
| Nazwa | Rzut | Pokoje | Powierzchnia | Piętro | Cena | Status |