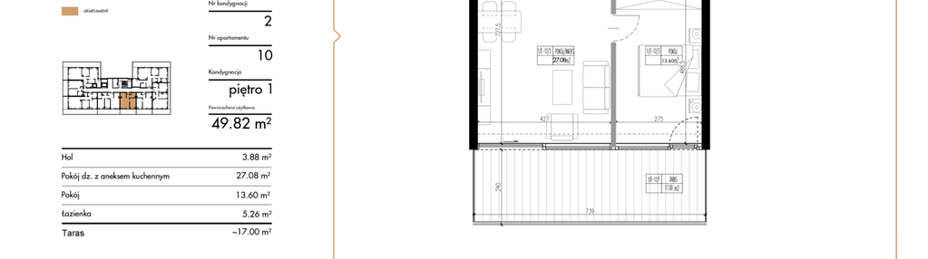
Nowe mieszkanie na sprzedaż 2 pokoje Olsztyn Likusy, 49,82 m2, 1 piętro - nr 10
Oferta sprzedaży od D.DOM Sp. z o.o.
Olsztyn, Likusy, ul. Bałtycka 91C (4km od centrum Olsztyna)

Główne cechy mieszkania
Ważne informacje
Mieszkanie 2 pokojowe
Dodatkowe informacje
Udogodnienia

Basen

Winda

Sauna

Plac zabaw

Klimatyzacja

Inteligentny dom
Przyroda

Jezioro

Park

Las
Inwestycja
Dostępne mieszkania w tej inwestycji
| Nazwa | Rzut | Pokoje | Powierzchnia | Piętro | Cena | Status |