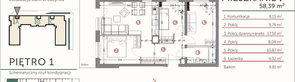
Nowe mieszkanie na sprzedaż 4 pokoje Olsztyn, 58,39 m2, 1 piętro - nr M7
Oferta sprzedaży od Ippon Group Sp. z o.o.
Olsztyn, ul. Immanuela Kanta 10 (4,4km od centrum Olsztyna)


Główne cechy mieszkania
Ważne informacje
Mieszkanie 4 pokojowe
Dodatkowe informacje
Udogodnienia

Usługi w budynku

Plac zabaw

Winda
Inwestycja

SYNERGIA
warmińsko-mazurskie, Olsztyn
W SAMYM SERCU JAROT Osiedle SYNERGIA powstanie w samym centrum dzielnicy mieszkaniowej – Jaroty, przy ul. Kanta. W miejscu dawnego sklepu spożywczo-przemysłowego wybudowany zostanie nowoczesny budynek mieszkalny z lokalami handlowo-usługowymi na parterze. Do jego budowy zostaną użyte materiały najwyższej jakości. Budynek w jasnej kolorystyce z elementami strukturalnej mozaiki na parterze, odświeży i wzbogaci krajobraz dzielnicy Jaroty. MIESZKANIA DLA CAŁYCH RODZIN Dostępne są mieszkania od 27 - 80 m2, od kawalerek poprzez mieszkania -2, -3 oraz 4 pokojowe. Mieszkańcy zagwarantowane będą mieli miejsca parkingowe w garażu podziemnym, miejsca parkingowe naziemne oraz dostęp do komórek lokatorskich. Wszystkie kondygnacje w budynku będą obsługiwane przez cichobieżne windy. GARAŻ PODZIEMNY DLA MIESZKAŃCÓW Mieszkańcy będą mieli do dyspozycji indywidualne miejsca parkingowe na wielostanowiskowym parkingu podziemnym. Bezpośrednio do poziomu garażu zjeżdża winda, która ułatwi transportowanie np. zakupów, wprost do mieszkania. Dodatkowo mieszkańcy i ich goście, mogą korzystać z zewnętrznych miejsc postojowych, znajdujących się przed budynkiem. ZIELONE PATIO SYNERGIA to nowoczesny budynek z wewnętrznym, zielonym dziedzińcem. Będzie to teren wyłącznie dla mieszkańców budynku. Skorzystają oni z alejek spacerowych, miejsc wypoczynku ze strefą rekreacji oraz bezpiecznego placu zabaw dla dzieci. Pojawią się drzewa i roślinność. Na teren patio będą także wychodzić mieszkania z prywatnymi ogródkami. Będzie więc to miejsce zielone, kameralne i bezpieczne. WSZĘDZIE BLISKO Jaroty to największa dzielnica miasta. W pobliżu osiedla znajduje się wiele punktów handlowo – usługowych. Po sąsiedzku mieszkańcy będą mieli dostęp do piekarni, aptek, poczty, przychodni, siłowni, restauracji, drogerii czy sklepów odzieżowych. W 2 minuty można dojść do przystanku autobusowego. W kilka minut dojechać do szkoły podstawowej, przedszkola oraz Galerii Warmińskiej. BEZ BARIER ARCHITEKTONICZNYCH Każde mieszkanie zostało dopracowane w najmniejszym szczególe, by zagwarantować komfort i wygodę użytkowania dla przyszłych mieszkańców. Lokale zostały odpowiednio doświetlone i wyciszone. Każde mieszkanie posiada do wybory balkon, ogródek lub duży taras. Budynek został zaprojektowany bez barier architektonicznych. Oznacza to, że wszystkie mieszkania oraz kondygnacje z komórkami lokatorskimi są dostępne dla osób starszych i niepełnosprawnych. STREFY REKREACJI Na wewnętrznym dziedzińcu znajdzie się nie tylko plac zabaw dla dzieci, ale także alejki spacerowe, ławki oraz drzewa i roślinność. Powstaną także specjalne strefy rekreacji, które będą miejscem spotkań oraz odpoczynku. Dostęp do patio będzie wyłącznie dla mieszkańców osiedla SYNERGIA. NOWOCZESNY I ELEGANCKI PROJEKT Klatki schodowe to połączenie nowoczesności i elegancji. Pojawiły się fototapety nawiązujące do aktywnego życia w mieście, duże lustra oraz oryginalne oświetlenie w postaci niesymetrycznych lamp. Modne połączenie kolorystyczne bieli, szarości oraz szałwii, dodało wnętrzu ponadczasowego wyglądu. WYKOŃCZONY TARAS W STANDARDZIE Do wybranych mieszkań na poziomie +1 dodatkowo przynależą tarasy, które osiągają powierzchnię do 63 m2. Dla wygody mieszkańców, zostaną one wykończone w standardzie, płytą gresową. Tarasy oddzielone będą od siebie, przegrodami, które zapewnią większą intymność i dodadzą kameralnego charakteru. HANDEL I USŁUGI Na poziomie parteru przewidziane są lokale handlowo-usługowe. Dla klientów sklepów powstaną dodatkowe miejsca parkingowe, chodniki oraz oświetlenie. Mieszkańcy będą więc mieli szybki dostęp do sklepu spożywczego i punktów usługowych.
Dostępne mieszkania w tej inwestycji
Nazwa | Rzut | Pokoje | Powierzchnia | Piętro | Cena | Status |