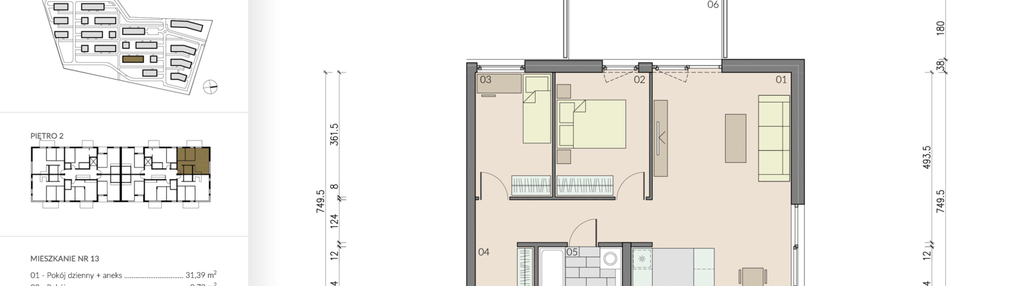
Nowe mieszkanie na sprzedaż 3 pokoje Olsztyn Pieczewo, 64,88 m2, 2 piętro - nr B1.13
Oferta sprzedaży od Premium Deweloper Sp. z o.o.
Olsztyn, Pieczewo, ul. Marii Dąbrowskiej 11 (3,9km od centrum Olsztyna)

Główne cechy mieszkania
Opis nieruchomości o powierzchni 64,88 m2
Mieszkanie w inwestycji: Osiedle Premium etap IV
Komórka lokatorska gratis!
Ważne informacje
Mieszkanie 3 pokojowe
Dodatkowe informacje
Udogodnienia

Plac zabaw

Rowerownia

Winda
Przyroda

Las

Jezioro
Inwestycja
Osiedle Premium etap IV
warmińsko-mazurskie, Olsztyn, Pieczewo
Osiedle Premium – ruszyły rezerwacje nowego etapu! Osiedle Premium w Olsztynie z przyjemnością informuje o nowym, IV etapie inwestycji. Biuro sprzedaży przyjmuje rezerwacje mieszkań budowanych bloków o oznaczeniu B1 i B2. Ponownie w ofercie dostępne są, cieszące się dużą popularnością, mieszkania 2-3-4 pokojowe. Przytulne mieszkania 2-pokojowe 41-46 m2, ustawne 3-pokojowe 51-65 m2, a także przestronne 4-pokojowe 72 m2. Cena mieszkań od 9300 zł/m2 uzależniona od wystawy i piętra. Strona wschodnia z widokiem na las. Planowany odbiór kluczy IV kw. 2026 r. Osiedle Premium to inwestycja realizowana na terenie osiedla Pieczewo w Olsztynie. Rozwinięta infrastruktura, mnóstwo możliwości, a jednocześnie osiedle bezpośrednio otulone lasem, który stanowi naturalną oazę przed miejskim zgiełkiem. Projekt deweloperski doskonały pod względem lokalizacji i atrakcyjny pod kątem nowoczesnej architektury. Osiedle Premium powstaje po to, aby zapewnić przyszłym mieszkańcom komfort codziennego życia i stworzyć przyjazne rodzinom miejsce w doskonałej lokalizacji. Na terenie osiedla został wybudowany z naturalnych materiałów, duży plac zabaw (m.in. huśtawki, zjeżdżalnie, piaskownica, hamaki, tyrolka, domki drewniane, ścieżka zdrowia). Termin oddania mieszkań: B1 i B2 – IV kw. 2026 B3 – II kw. 2027
Dostępne mieszkania w tej inwestycji
| Nazwa | Rzut | Pokoje | Powierzchnia | Piętro | Cena | Status |