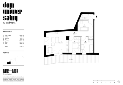
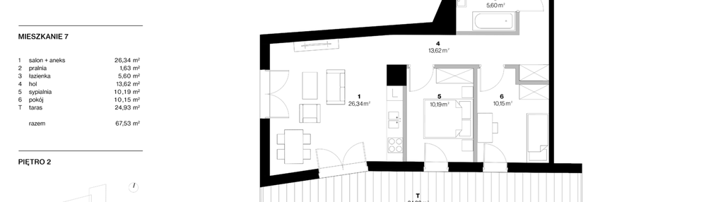
Nowe mieszkanie na sprzedaż 3 pokoje Otwock, 67,53 m2, 2 piętro - nr 7
Oferta sprzedaży od Landmark Sp. z o.o.
Otwock, ul. Andriollego 10

Główne cechy mieszkania
Ważne informacje
Mieszkanie 3 pokojowe
Dodatkowe informacje
Udogodnienia

Usługi w budynku

Winda
Inwestycja
Dom Uniwersalny
mazowieckie, otwocki, Otwock
Dom Uniwersalny zlokalizowany jest przy ul. Andriollego 10 w ścisłym centrum Otwocka tuż obok dworca kolejowego. W tym miejscu działał w czasach PRLu kultowy Bar Uniwersalny, prowadzony przez Antoniego Jarząbka. Dzięki swojej ikonicznej formie oraz eksponowanej lokalizacji, budynek ma szanse stać się jedną z wizytówek miasta. Bryła budynku podzielona została na dwie części o zróżnicowanym charakterze elewacyjnym oraz wysokościowym. Składają się na nią istniejący, dwukondygnacyjny budynek drewniany, oraz zupełnie nowa bryła o znacznie większych gabarytach. Jej prosta i delikatna forma w sposób przewrotny inspirowana jest stylem świdermajer, którego przedstawicielem jest niższy budynek. Przestronne balkony zostały zaprojektowane jako ażurowe werandy, doskonale nadające się do codziennego wypoczynku. Pionowe szprosy elewacyjne, z których składa się fasada, projektowane są jako elementy drewniane, malowane na kolor biały, który będzie dominującą barwą elewacji. Także malowana proszkowo w tym samym kolorze stal, z której wykonane będą zewnętrzne balustrady, korespondować będzie z ażurowym motywem fasady. Całość będzie ascetyczna w formie i kolorze dzięki czemu zyska ponadczasowy charakter. W parterze zlokalizowane zostały lokale usługowe a pozostałe kondygnacje nadziemne pełnić będą funkcję mieszkalną. W budynku będzie mieścił się parking podziemny. Na tyłach obiektu znajdzie się zazieleniony dziedziniec dostępny tylko dla mieszkańców. Swoim charakterem nawiązywać będzie do architektury obiektu.
Dostępne mieszkania w tej inwestycji
| Nazwa | Rzut | Pokoje | Powierzchnia | Piętro | Cena | Status |