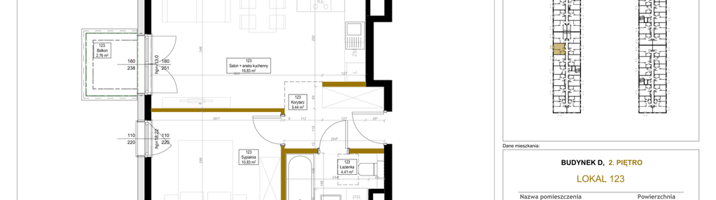
Nowe mieszkanie na sprzedaż 2 pokoje Ożarów Mazowiecki, 40,51 m2, 2 piętro - nr 123
Oferta sprzedaży od Mill-Yon Sp. z o.o.
Ożarów Mazowiecki, ul. Kapucka

Główne cechy mieszkania
Ważne informacje
Mieszkanie 2 pokojowe
Dodatkowe informacje
Udogodnienia

Patio / Dziedziniec

Winda

Plac zabaw

Własna kotłownia

Usługi w budynku
Przyroda

Park

Staw
Inwestycja
Aura Nova etap II
mazowieckie, warszawski zachodni, Ożarów Mazowiecki
Aura Nova to wyjątkowa inwestycja zlokalizowana w doskonale skomunikowanej z Warszawą, dynamicznie rozwijającej się części Ożarowa Mazowieckiego. Znajdziesz tutaj wszystko, czego potrzebujesz do wygodnego życia. Kameralna, niska zabudowa, funkcjonalne mieszkania, bliskość usług, terenów zielonych oraz rekreacyjnych, a także wygodny dostęp do stolicy. Położenie inwestycji zapewnia możliwość korzystania z zaplecza edukacyjnego, rekreacyjno-sportowego kulturalnego i handlowo-usługowego. W najbliższej okolicy znajdują się przedszkola, szkoły podstawowe, urząd miasta, ośrodek sportowy z pływalnią oraz dom kultury, a także sklep wielobranżowy i supermarket. Codzienne dojazdy do stolicy, już nigdy nie będą kojarzyć się z korkami. Do Centrum Warszawy można stąd łatwo dotrzeć koleją, z pobliskiej stacji PKP Ożarów, w zaledwie 24 minuty. W niedalekiej odległości od inwestycji znajduje się także przystanek autobusowy linii 713, kursującej między Ożarowem a Warszawą. Bliskie sąsiedztwo terenów zielonych sprzyja rekreacji oraz odpoczynkowi na łonie natury. Na terenie gminy znajduje się Park Ołtarzew o charakterze leśnym, a także Rezerwat Przyrody Wolica z bogatą fauną i florą. Atrakcją tego rejonu jest pochodzący z XIX wieku Dwór w Duchnicach oraz zabytkowy kompleks Gołaszew, z zachowanymi elementami neorenesansowej architektury.
Dostępne mieszkania w tej inwestycji
| Nazwa | Rzut | Pokoje | Powierzchnia | Piętro | Cena | Status |