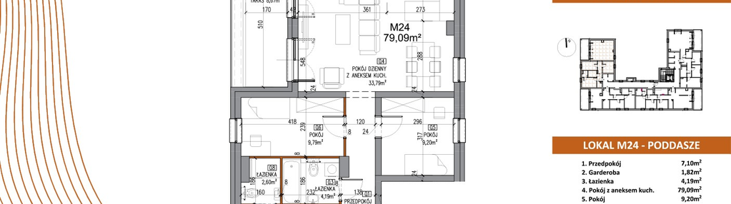
Nowe mieszkanie na sprzedaż 4 pokoje Polanica-Zdrój, 79,28 m2, 3 piętro - nr M24
Oferta sprzedaży od Moje Miejsce Villa Terra Sp. z o.o. Sp. k.
Polanica-Zdrój, ul. Mickiewicza 2C


Główne cechy mieszkania
Ważne informacje
Mieszkanie 4 pokojowe
Inwestycja

Dostępne mieszkania w tej inwestycji
Nazwa | Rzut | Pokoje | Powierzchnia | Piętro | Cena | Status |