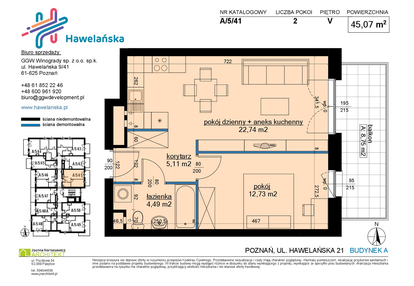
Nowe mieszkanie na sprzedaż 2 pokoje Poznań Stare Miasto, 45,07 m2, 5 piętro - nr A/5/41
Oferta sprzedaży od GGW Development
Poznań, Stare Miasto, Stare Winogrady, 23,25 (3,8km od centrum Poznania)

Główne cechy mieszkania
Ważne informacje
Mieszkanie 2 pokojowe
Dodatkowe informacje
Udogodnienia

Patio / Dziedziniec

Winda

Plac zabaw

Rowerownia
Przyroda

Rzeka

Park
Inwestycja
Osiedle Hawelańska etap III - bud. A
wielkopolskie, Poznań, Stare Miasto, Stare Winogrady
Osiedle Hawelańska III etap to inwestycja powstająca na poznańskich Winogradach przy ul. Hawelańskiej 21,23,25. Kolejny etap Osiedla Hawelańska, tak jak poprzednie projekty będzie łączyć świetny pomysł architektoniczny ze znakomitą lokalizacją. Projektanci zadbali o to by lokale były funkcjonalne, oraz optymalne w zakresie wielkości i doświetlenia. Przedsięwzięcie deweloperskie obejmuje 336 mieszkań w trzech budynkach – 11 i 8 piętrowych - od kawalerek po sześciopokojowe, o metrażach od 28 do 176 m2 z tarasami, balkonami czy loggiami na wyższych kondygnacjach. Cofnięte ściany ostatniej kondygnacji budynków dały możliwość zaprojektowania przestronnych tarasów oraz panoramicznych okien. Mieszkania na piętrze pierwszym za względu na wysunięty dach nad parterem – posiadają przestronne zielone tarasy. W ramach Osiedla hawelańska, do dyspozycji mieszkańców przewidziano dwupoziomową halę garażową, miejsca naziemne, rowerownię oraz komórki lokatorskie. Do części miejsc postojowych będzie istniała możliwość zamontowania urządzeń do ładowania pojazdów elektrycznych. Między budynkami powstanie skwer z elementami małej architektury, stojakami rowerowymi i placem zabaw. Niewątpliwym atutem powstającej inwestycji jest położenie, zapewniające dogodny dojazd do centrum miasta wszystkim niezmotoryzowanym mieszkańcom, korzystającym z komunikacji publicznej oraz infrastruktury dróg rowerowych. Nieopodal osiedla, znajdują się przystanek tramwajowy oraz autobusowy przy ul. Naramowickiej. Dzięki bliskości ulicy Lechickiej, również kierowcy będą się cieszyć dobrym połączeniem z centrum Poznania oraz szybkim dojazdem do okolicznych miejscowości. Doskonale rozwinięta infrastruktura handlowo-usługowa oraz edukacyjna Winograd, pozwoli mieszkańcom osiedla załatwiać wszelkie życiowe sprawy w bliskiej odległości od miejsca zamieszkania, bez konieczności udawania się do centrum. W promieniu 2 km od inwestycji znajdują się liczne sklepy spożywcze, targi owocowo-warzywne, centra handlowe takie jak CH Plaza, Castorama czy Makro. Dostępne na Osiedlu Hawelańska III etap mieszkania przypadną do gustu wszystkim, którzy szukają możliwości aktywnego wypoczynku. Niedaleko znajdują się Park Cytadela , trasa rowerowa wzdłuż malowniczego wybrzeża Warty, Park Szelągowski oraz Pływalnia Miejska POSiR Winogrady.
Dostępne mieszkania w tej inwestycji
| Nazwa | Rzut | Pokoje | Powierzchnia | Piętro | Cena | Status |