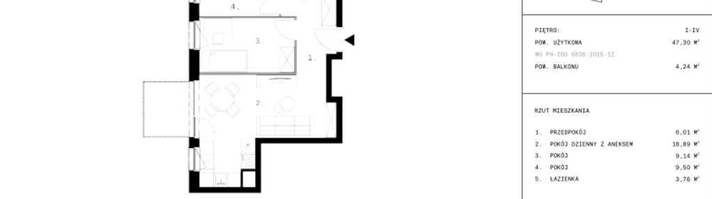
Nowe mieszkanie na sprzedaż 3 pokoje Poznań Wilda, 47,08 m2, 4 piętro - nr C1.4
Oferta sprzedaży od Strus Development Sp. z o.o.
Poznań, Wilda, Zielony Dębiec, ul. 28 Czerwca 1956 r. 346 (4,6km od centrum Poznania)


Główne cechy mieszkania
Ważne informacje
Mieszkanie 3 pokojowe
Dodatkowe informacje
Udogodnienia

Winda

Rowerownia

Plac zabaw
Inwestycja

28 czerwca 1956 r.
wielkopolskie, Poznań, Wilda, Zielony Dębiec
Na inwestycję 28 Czerwca 1956 r. składać się będą cztery budynki mieszkalne. Z zewnątrz utrzymane w ciepłych kolorach i czerpiące z aktualnych trendów architektonicznych, by ładnie wpisywać się w zieloną i cechującą się stosunkowo niskim budownictwem okolicę. Do realizacji tej inwestycji zostaną użyte materiały o wysokiej jakości tak, by nie tylko mieszkania, ale także teren wspólny, mogły służyć przez długie lata. Osiedle będzie ogrodzone, a mieszkańcy będą mogli liczyć na ciszę i spokój. Wspomniane cztery budynki tworzą inwestycję 28 Czerwca 1956 r. Nowe mieszkania o różnej powierzchni, są naszą odpowiedzią na potrzeby dzisiejszego rynku. Duża rozpiętość metrażu z pewnością pozwoli każdemu znaleźć swój nowy dom – zarówno rozglądającym się za mniejszym lokum singlom, jak i szukającym przestronnego miejsca rodzinom. Niezależnie od wielkości mieszkania, każde odznaczać się będzie nienaganną jakością i praktycznym wykorzystaniem przestrzeni.
Dostępne mieszkania w tej inwestycji
Nazwa | Rzut | Pokoje | Powierzchnia | Piętro | Cena | Status |