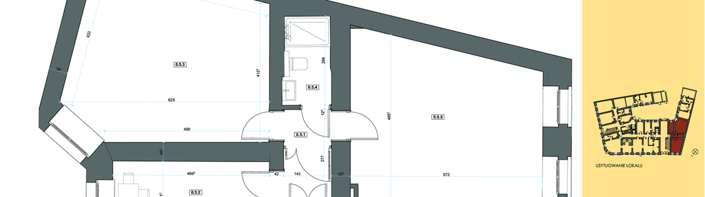
Nowe mieszkanie na sprzedaż 3 pokoje Poznań Stare Miasto, 69,23 m2, parter - nr 0.5
Oferta sprzedaży od Działyńskich Sp. z o.o.
Poznań, Stare Miasto, Osiedle Stare Miasto, ul. Działyńskich 6 (0,6km od centrum Poznania)

Główne cechy mieszkania
Ważne informacje
Mieszkanie 3 pokojowe
Inwestycja
Działyńskich 6
wielkopolskie, Poznań, Stare Miasto, Osiedle Stare Miasto
Kamienica przy Działyńskich 6 powstała w 1895 roku. Zaprojektowana została przez biuro architektoniczne Hugo Kindler&Gustav Kartmann w stylistyce neobarokowej – czyli nurcie architektonicznym bardzo popularnym w okresie powstawania budynku. Nawiązania do baroku widoczne są szczególnie w dekoracyjnej elewacji. W podobnym stylu, architekci Kindler i Kartmann, zaprojektowali również inne kamienice przy ul. Działyńskich – sąsiadujące z szóstką budynki pod numerami 2, 3, 7 i 8. Dzięki temu cała ulica Działyńskich prezentuje się harmonijnie. Działyńskich 6 to budynek pięciokondygnacyjny, a w jego bryle zaakcentowane są 3 wykusze zwieńczone w linii dachowej lukarnami, nakrytymi hełmami dachowymi z iglicami. Istotną rolę, poza funkcją, pełnią przepiękne balkony, z ażurowymi balustradami. Naroże budynku zwieńczone zostało wieżą z lukarną nakrytą heksagonalnym dachem.
Dostępne mieszkania w tej inwestycji
| Nazwa | Rzut | Pokoje | Powierzchnia | Piętro | Cena | Status |