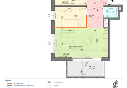
Nowe mieszkanie na sprzedaż 3 pokoje Poznań Grunwald, 52,18 m2, 4 piętro - nr D1.4.45.3a
Oferta sprzedaży od art.Locum S.A.
Poznań, Grunwald, Junikowo, ul. Miśnieńska 38 (5,9km od centrum Poznania)


Główne cechy mieszkania
Ważne informacje
Mieszkanie 3 pokojowe
Dodatkowe informacje
Udogodnienia

Plac zabaw

Usługi w budynku

Winda

Rowerownia
Inwestycja

Junique I.II
wielkopolskie, Poznań, Grunwald, Junikowo
Junique – unikalne Junikowo. Zamieszkaj po swojemu. Nowy etap osiedla Junique to propozycja dla każdego, kto szuka wyjątkowego miejsca do życia – bez względu na styl życia, etap w życiu czy potrzeby. Powstaje tu 161 mieszkań, które łączą funkcjonalność, komfort i nowoczesną estetykę. Niezależnie od tego, czy: - marzysz o swoim pierwszym mieszkaniu, - żyjesz minimalistycznie i szukasz kompaktowej przestrzeni, - planujesz rodzinne życie w wygodnym, przestronnym wnętrzu – tu znajdziesz coś dla siebie. Wybierz idealne mieszkanie dla siebie: - 2-pokojowe mieszkania od 32 m² – wygodne, ustawne, idealne na start lub jako inwestycja pod wynajem - 3-pokojowe mieszkania od 46 m² – praktyczne i przestrzenne, świetne dla par i młodych rodzin - 4-pokojowe mieszkania od 59 m² – optymalne dla rodzin lub osób ceniących dodatkową przestrzeń - 4-pokojowe o powierzchni 87 m² z tarasem ponad 100 m² – dla tych, którzy chcą cieszyć się życiem na świeżym powietrzu i panoramicznym widokiem - 5-pokojowe z dużym ogrodem – idealne dla rodzin z dziećmi i osób, które chcą połączyć komfort mieszkania z urokiem domu z ogrodem. Inwestycja z potencjałem Junique to także atrakcyjna oferta dla inwestorów – nowoczesne, funkcjonalne mieszkania o mniejszych metrażach doskonale sprawdzą się w wynajmie. Lokalizacja na Grunwaldzie, rozwinięta infrastruktura i szybki dostęp do centrum gwarantują wysokie zainteresowanie najemców. Co znajdziesz w tym etapie inwestycji? - 161 mieszkań - Różnorodne układy i metraże – od kawalerek po przestronne 5-pokojowe apartamenty - 4 lokale handlowo-usługowe - Nowe miejsce na mapie osiedla – planujemy tu usługi, które docenią nasi mieszkańcy - Boksy rowerowe - Wygodne przechowywanie rowerów w hali garażowej oraz na terenie zewnętrznym - Miejsca postojowe - Zarówno w hali garażowej, jak i na zewnątrz - Place zabaw i tereny rekreacyjne - Bezpieczne i przyjazne przestrzenie dla dzieci i dorosłych Codzienność zaprojektowana z myślą o Tobie Junique to nie tylko mieszkania – to harmonijnie zaplanowane osiedle z myślą o wygodzie i jakości życia. W najbliższej okolicy znajdziesz wszystko, czego potrzebujesz: - Sklepy, apteki, punkty usługowe, restauracje i kawiarnie - Żłobki, przedszkola i szkoły – zarówno publiczne, jak i prywatne - Bliskość natury – Lasek Marceliński, Szachty, liczne trasy spacerowe i rowerowe - Doskonałe połączenia komunikacyjne (Pętla Junikowo) – szybki dojazd do centrum, uczelni i miejsc pracy. Junique – unikalne Junikowo To nie tylko hasło – to obietnica dobrego życia Nowoczesna architektura, przemyślany projekt i funkcjonalne rozwiązania sprawiają, że Junique staje się miejscem, które spełnia oczekiwania najbardziej wymagających klientów.
Dostępne mieszkania w tej inwestycji
Nazwa | Rzut | Pokoje | Powierzchnia | Piętro | Cena | Status |