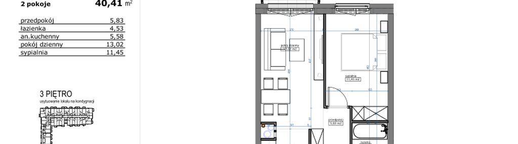
Nowe mieszkanie na sprzedaż 2 pokoje Poznań Stare Miasto, 40,41 m2, 3 piętro - nr 03.07
Oferta sprzedaży od Platforma Mieszkaniowa
Poznań, Stare Miasto, Naramowice, ul. Naramowicka 172 (5,3km od centrum Poznania)

Główne cechy mieszkania
Ważne informacje
Mieszkanie 2 pokojowe
Dodatkowe informacje
Udogodnienia

Winda

Rowerownia
Inwestycja
Naramowicka 172
wielkopolskie, Poznań, Stare Miasto, Naramowice
Naramowicka 172 to dwa budynki o nowoczesnej, dynamicznej architekturze. Znajdziesz tu zarówno niewielkie, ale funkcjonalne kawalerki jak i mieszkania 2-pokojowe i 3-pokojowe. Każde mieszkanie posiada balkon, a do mieszkań na parterze, przynależą ogródki! W budynku znajdują się 4 duże apartamenty z wyjątkowymi tarasami.
Dostępne mieszkania w tej inwestycji
| Nazwa | Rzut | Pokoje | Powierzchnia | Piętro | Cena | Status |