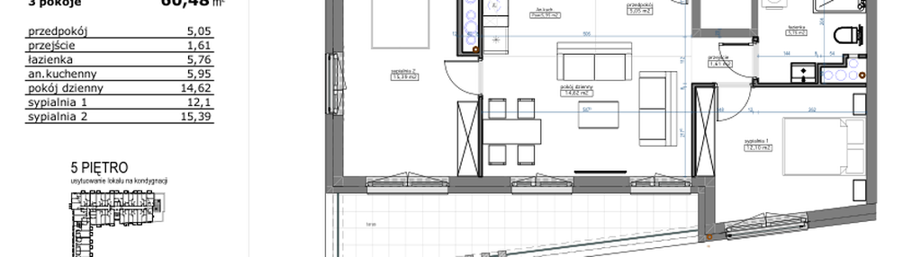
Nowe mieszkanie na sprzedaż 3 pokoje Poznań Stare Miasto, 60,48 m2, 5 piętro - nr 05.01
Oferta sprzedaży od Platforma Mieszkaniowa
Poznań, Stare Miasto, Naramowice, ul. Naramowicka 172 (5,3km od centrum Poznania)

Główne cechy mieszkania
Ważne informacje
Mieszkanie 3 pokojowe
Dodatkowe informacje
Udogodnienia

Rowerownia

Winda
Inwestycja
Naramowicka 172
wielkopolskie, Poznań, Stare Miasto, Naramowice
Naramowicka 172 to dwa budynki o nowoczesnej, dynamicznej architekturze. Znajdziesz tu zarówno niewielkie, ale funkcjonalne kawalerki jak i mieszkania 2-pokojowe i 3-pokojowe. Każde mieszkanie posiada balkon, a do mieszkań na parterze, przynależą ogródki! W budynku znajdują się 4 duże apartamenty z wyjątkowymi tarasami.
Dostępne mieszkania w tej inwestycji
| Nazwa | Rzut | Pokoje | Powierzchnia | Piętro | Cena | Status |