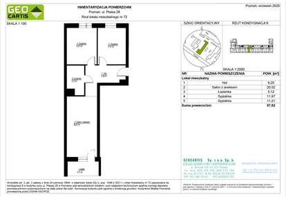
Nowe mieszkanie na sprzedaż 3 pokoje Poznań Grunwald, 57,52 m2, 5 piętro - nr 28/72
Oferta sprzedaży od Grupa Inwest
RezerwacjaPoznań, Grunwald, Ławica, ul. Ptasia 28 (4,7km od centrum Poznania)

Główne cechy mieszkania
Ważne informacje
Mieszkanie 3 pokojowe
Dodatkowe informacje
Udogodnienia

Usługi w budynku

Winda
Przyroda

Las
Inwestycja
Symfonia Ptasia 28
wielkopolskie, Poznań, Grunwald, Ławica
Symfonia Ptasia 28 to unikalna inwestycja od Grupa Inwest, oferująca 118 przestronnych mieszkań 2-5-pokojowych o powierzchni 41 - 120 m2 w sześciopiętrowym budynku. Każde mieszkanie zostało zaprojektowane z myślą o komforcie i wygodzie mieszkańców, oferując przestronne pomieszczenia dopasowane do potrzeb przyszłych Nabywców. Lokale wyposażone są w tarasy, ogródki i balkony, które pozwalają cieszyć się świeżym powietrzem oraz pięknymi widokami. Dodatkowo, inwestycja zapewnia miejsca postojowe i komórki lokatorskie w podziemnej dwupoziomowej hali garażowej, gwarantując wygodne i bezpieczne parkowanie oraz dodatkową przestrzeń do przechowywania. Dla miłośników aktywnego trybu życia przewidziana jest wspólna rowerownia, zachęcająca do korzystania z ekologicznego środka transportu.
Dostępne mieszkania w tej inwestycji
| Nazwa | Rzut | Pokoje | Powierzchnia | Piętro | Cena | Status |