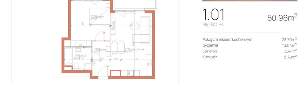
Nowe mieszkanie na sprzedaż 2 pokoje Poznań Wilda, 50,96 m2, 1 piętro - nr 1.01
Oferta sprzedaży od Masterm
Poznań, Osiedle Wilda, ul. Sikorskiego 40 (1,7km od centrum Poznania)

Główne cechy mieszkania
Ważne informacje
Mieszkanie 2 pokojowe
Dodatkowe informacje
Udogodnienia

Rowerownia

Winda

Usługi w budynku
Inwestycja
Na Wildzie
wielkopolskie, Poznań, Wilda, Osiedle Wilda
Na Wildzie – miejska kamienica w sercu Wildy Inwestycja Na Wildzie to nowoczesna, miejska kamienica, która harmonijnie wpisuje się w charakter tej tętniącej życiem dzielnicy. Zaprojektowana przez Ultra Architects i realizowana przez Masterm, łączy ducha przeszłości z nowoczesnymi rozwiązaniami architektonicznymi. Przemyślana forma i dbałość o detale sprawiają, że to miejsce stworzone z myślą o komforcie, elegancji i ponadczasowym stylu. Budynek nawiązuje do tradycyjnych miejskich podziałów, a subtelna pastelowa kolorystyka, eleganckie elewacje i dbałość o detale tworzą estetyczną i ponadczasową przestrzeń. Mieszkania W inwestycji zaprojektowano 64 mieszkania o metrażach od 26 do 88 m², z funkcjonalnymi układami, które sprzyjają komfortowi codziennego życia. Projektowane mieszkania oferują przestronne balkony od strony południowej, zielone ogródki i starannie rozplanowane układy pomieszczeń. Budynek posiada 6 kondygnacji naziemnych wraz z parterem oraz 2 kondygnacje podziemne. Przekazanie kluczy planowane jest na IV kwartał 2027 roku. Z myślą o mieszkańcach Do dyspozycji mieszkańców zaplanowano zieloną strefę na dachu z tarasem i łąką kwietną, pozwalającą na odpoczynek. Dodatkowo dla przyszłych mieszkańców Na Wildzie deweloper przewidział dostęp do podziemnej hali garażowej (68 miejsc), 25 komórek lokatorskich (od 1,88 do 6,76 m², zakup opcjonalny) oraz rowerowni.
Dostępne mieszkania w tej inwestycji
| Nazwa | Rzut | Pokoje | Powierzchnia | Piętro | Cena | Status |