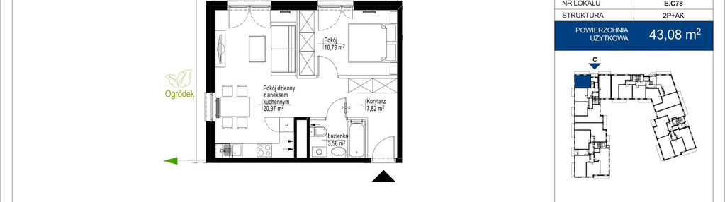
Nowe mieszkanie na sprzedaż 2 pokoje Poznań Grunwald, 43,08 m2, parter - nr E.C78
Oferta sprzedaży od Jakon Sp. z o.o.
Poznań, Grunwald, Junikowo, ul. Wieruszowska 6 (6,2km od centrum Poznania)

Główne cechy mieszkania
Ważne informacje
Mieszkanie 2 pokojowe
Dodatkowe informacje
Udogodnienia

Rowerownia

Wózkarnia

Winda

Plac zabaw

Klimatyzacja
Przyroda

Las
Inwestycja
Wieruszowska E
wielkopolskie, Poznań, Grunwald, Junikowo
Inwestycja znajduje się przy ul. Wieruszowskiej, w pobliżu skrzyżowania z ulicą Grunwaldzką. Lokalizacja jest atrakcyjna dla wszystkich, którzy cenią sobie spokój i bliskość terenów zielonych. Dogodny dostęp do komunikacji miejskiej - pętli Junikowo sprawia, że jest to również propozycja dla osób, które nie chcą rezygnować z udogodnień, jakie daje centrum miasta. W pobliżu inwestycji znajdują się rozległe tereny spacerowe w Lasku Marcelińskim. Na inwestycji Wieruszowska zaprojektowano podziemną halę garażową. Dodatkowo na dwóch miejscach postojowych na terenie osiedla zaplanowano stację do ładowania pojazdów elektrycznych. Budynek został wyposażony w rolety na każdej kondygnacji, cichobieżne windy, oraz starannie zaprojektowaną zieleń na dziedzińcu wraz z placem zabaw dla najmłodszych mieszkańców.
Dostępne mieszkania w tej inwestycji
| Nazwa | Rzut | Pokoje | Powierzchnia | Piętro | Cena | Status |