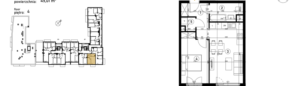
Nowe mieszkanie na sprzedaż 2 pokoje Poznań Grunwald, 45,01 m2, 4 piętro - nr 8 F/38
Oferta sprzedaży od EBF Development
Poznań, Grunwald, Junikowo, ul. Wieruszowska 8 (6,3km od centrum Poznania)

Główne cechy mieszkania
Ważne informacje
Mieszkanie 2 pokojowe
Dodatkowe informacje
Udogodnienia

Rowerownia

Winda

Plac zabaw
Inwestycja
Grunwald Park
wielkopolskie, Poznań, Grunwald, Junikowo
Grunwald Park to najnowszy projekt mieszkaniowy EBF Development na terenie Poznania. Oferta skierowana jest zarówno dla singli, par i rodzin z dziećmi oraz osób, które chcą bezpiecznie ulokować swój kapitał. Niskie, cztero- i pięciokondygnacyjne budynki o klasycznej bryle, uzupełnione o charakterystyczne detale i stonowaną kolorystykę to przykład harmonijnego połączenia ponadczasowej elegancji z zastosowaniem nowoczesnych rozwiązań technologicznych. W pierwszym etapie osiedla powstaną 2 segmenty wielorodzinne. Łącznie 147 mieszkań o zróżnicowanych powierzchniach od 26 do 84 mkw. W ofercie są zarówno kawalerki oraz lokale 2-, 3- i 4- pokojowe, wszystkie z balkonami, tarasami lub loggiami. Budynki wyposażone będą w cichobieżne windy, instalację fotowoltaiczną zasilającą części wspólne a każde mieszkanie będzie miało przygotowane skrzynki pod rolety zewnętrzne. Do dyspozycji będą również komórki lokatorskie, podziemna hala garażowa oraz miejsca postojowe naziemne. Części wspólne wyróżnią się ponadczasową estetyką i użyciem wyszukanych materiałów wykończeniowych. Właściciele samochodów elektrycznych otrzymają miejsce do ładowania, miłośnicy dwóch kółek – rowerownie, a najmłodsi mieszkańcy plac zabaw. Powstaną również elementy małej architektury jak m.in. drogi wewnętrzne, chodniki i oświetlenie. Planowany termin zakończenia I etapu budowy to grudzień 2025 roku, natomiast odbiór kluczy to II kwartał 2026 roku. Osiedle powstanie przy ulicy Wieruszowskiej 8, na terenie popularnej dzielnicy Grunwald. Lokalizacja umożliwia korzystanie z pełnego zaplecza handlowo–usługowego, które gwarantuje najbliższe otoczenie inwestycji. Sąsiedztwo Pętli Junikowo pozwala na dotarcie tramwajem do innych części Poznania. Natomiast pobliska ulica Grunwaldzka to dla zmotoryzowanych sprawny dojazd do Portu Lotniczego Poznań-Ławica, dworca PKP czy centrum miasta. Położenie inwestycji kilka kilometrów od węzła komunikacyjnego Poznań - Komorniki zapewnia połącznie z autostradą A2 oraz drogami ekspresowymi S5 i S11. Przyszli mieszkańcy osiedla będą mogli korzystać także z licznych placówek dydaktycznych i zdrowotnych oraz obiektów sportowych i kulturalnych. W okolicy nie brakuje również terenów zielonych i rekreacyjnych pełnych ścieżek spacerowych i dróg rowerowych.
Dostępne mieszkania w tej inwestycji
| Nazwa | Rzut | Pokoje | Powierzchnia | Piętro | Cena | Status |