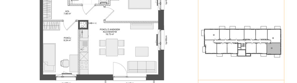
Nowe mieszkanie na sprzedaż 3 pokoje Rumia, 50,95 m2, 1 piętro - nr B5.21
Oferta sprzedaży od Euro Styl S.A.
Rumia, ul. Błoń Janowskich

Główne cechy mieszkania
Ważne informacje
Mieszkanie 3 pokojowe
Dodatkowe informacje
Udogodnienia

Rowerownia

Plac zabaw

Winda
Przyroda

Park
Inwestycja
Osiedle Przy Błoniach 3 etap IV
pomorskie, wejherowski, Rumia
Osiedle przy Błoniach 3 to świetne miejsce do życia. Mieszkańcom będzie towarzyszyć na co dzień bogactwo różnorodnej zieleni, a także skorzystają oni z licznych udogodnień, takich jak: sklepy i punkty usługowe na osiedlu, ścieżki spacerowe, plac zabaw dla dzieci, stojaki rowerowe i rowerownie czy strefa rekreacji i planowany park tuż przy osiedlu.
Dostępne mieszkania w tej inwestycji
| Nazwa | Rzut | Pokoje | Powierzchnia | Piętro | Cena | Status |