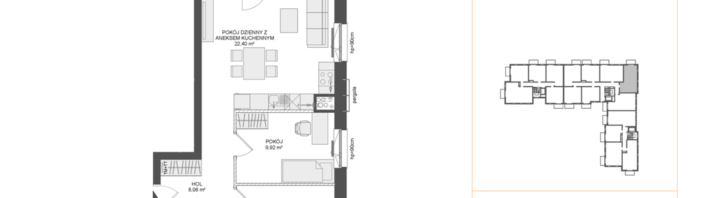
Nowe mieszkanie na sprzedaż 3 pokoje Rumia, 55,30 m2, 2 piętro - nr B4.38
Oferta sprzedaży od Euro Styl S.A.
Rumia, ul. Błoń Janowskich

Główne cechy mieszkania
Opis nieruchomości o powierzchni 55,30 m2
Mieszkanie w inwestycji: Osiedle Przy Błoniach 3 etap III
Mieszkanie z harmonogramem odroczonych płatności 20/80
Ważne informacje
Mieszkanie 3 pokojowe
Dodatkowe informacje
Udogodnienia

Wózkarnia

Plac zabaw

Boisko

Winda

Rowerownia
Przyroda

Park
Inwestycja
Osiedle Przy Błoniach 3 etap III
pomorskie, wejherowski, Rumia
Osiedle przy Błoniach 3 to świetne miejsce do życia. Mieszkańcom będzie towarzyszyć na co dzień bogactwo różnorodnej zieleni, a także skorzystają oni z licznych udogodnień, takich jak: sklepy i punkty usługowe na osiedlu, ścieżki spacerowe, plac zabaw dla dzieci, stojaki rowerowe i rowerownie czy strefa rekreacji i planowany park tuż przy osiedlu.
Dostępne mieszkania w tej inwestycji
| Nazwa | Rzut | Pokoje | Powierzchnia | Piętro | Cena | Status |