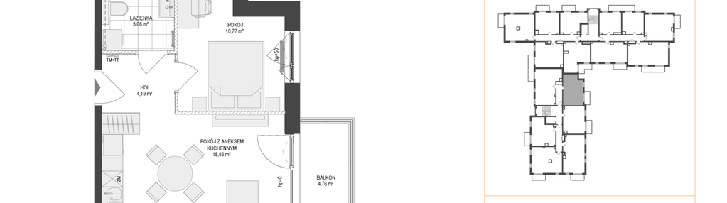
Nowe mieszkanie na sprzedaż 2 pokoje Rumia, 38,88 m2, 5 piętro - nr 94
Oferta sprzedaży od Euro Styl S.A.
Rumia, ul. Generała Henryka Dąbrowskiego

Główne cechy mieszkania
Ważne informacje
Mieszkanie 2 pokojowe
Dodatkowe informacje
Udogodnienia

Winda

Usługi w budynku

Plac zabaw

Rowerownia
Przyroda

Park
Inwestycja
Locus 2 bud. B2
pomorskie, wejherowski, Rumia
POZNAJ LOCUS 2 Osiedle Locus 2 to inspirujące miejsce do zamieszkania. Stanowi kontynuację już zrealizowanej "po sąsiedzku" i świetniej przyjętej inwestycji Locus w Rumi Janowie, która dzięki znakomitej lokalizacji przy granicy z Gdynią i przemyślanej architekturze zdobyła uznanie mieszkańców. W pierwszym etapie szeroki wybór komfortowych mieszkań i lokali usługowych. PRZY GRANICY Z GDYNIĄ Osiedle łączy w sobie wachlarz różnorodnych zalet wynikający z atrakcyjnej lokalizacji i dostępności rozwiniętej infrastruktury miejskiej. Mieszkańcy mogą korzystać z typowo miejskich atrakcji w samej Rumi, dojechać autem czy bezpośrednim autobusem w kilkanaście minut do centrum Gdyni, jak również cieszyć się bliskością natury (10 min rowerem do Trójmiejskiego Parku Krajobrazowego) i sąsiedztwem nadmorskich miejscowości, takich jak Rewa czy Mechelinki. ATRAKCJE NA OSIEDLU Osiedle zaprojektowano z myślą o wygodzie życia i komforcie mieszkańców. Znajdą na nim m.in. lokale handlowo-usługowe, plac zabaw czy stacja do ładowania aut elektrycznych. Centralny dziedziniec z ławkami i zróżnicowaną zielenią utworzy przyjazną przestrzeń do relaksu i sąsiedzkiej integracji. Miejsca postojowe będzie można znaleźć w halach garażowych oraz dobrze zaprojektowanych strefach parkingów naziemnych. EKOLOGIA W trosce o środowisko, na osiedlu zaplanowano szereg proekologicznych rozwiązań, w tym: - gniazda elektryczne przy wybranych stanowiskach postojowych w hali garażowej - stacja ładowania aut elektrycznych - rowerownia w hali garażowej oraz stojaki rowerowe na osiedlu - zielone dachy budynków - energooszczędne oświetlenie LED w częściach wspólnych ARCHITEKTURA I WNĘTRZA Osiedle utworzą cztery nowoczesne budynki o jasnej elewacji. Duże przeszklenia nadadzą inwestycji lekkości i szyku. Przeszklone balkony, pionowe, brązowe listwy i subtelne boniowania dadzą wyjątkowy efekt gry światła. Eleganckiego charakteru wnętrzom nadadzą natomiast ciepłe barwy, odpowiednie oświetlenie i starannie dobrane materiały wykończeniowe. FUNKCJONALNE MIESZKANIA Na Osiedlu Locus 2 znajdziesz mieszkanie dopasowane do swoich potrzeb: - 1-3 pokojowe - balkony, tarasy i prywatne ogródki - szpachlowane i pomalowane na biało ściany i sufity - duże okna zapewniające dobre doświetlenie mieszkań - funkcjonalne układy, dające szerokie możliwości aranżacji - możliwość montażu klimatyzacji w mieszkaniach na najwyższych piętrach
Dostępne mieszkania w tej inwestycji
| Nazwa | Rzut | Pokoje | Powierzchnia | Piętro | Cena | Status |