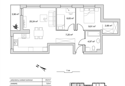
Nowe mieszkanie na sprzedaż 3 pokoje Rumia, 56,18 m2, 4 piętro - nr 6.25
Oferta sprzedaży od LOKER Sp. z o.o.
Rumia, ul. Jęczmienna

Główne cechy mieszkania
Ważne informacje
Mieszkanie 3 pokojowe
Dodatkowe informacje
Udogodnienia

Plac zabaw

Winda
Przyroda

Morze

Park
Inwestycja
Vela Park bud. 6
pomorskie, wejherowski, Rumia
Osiedle Vela Park powstanie w Rumi, przy ul. Jęczmiennej to projekt osiedla składający się z 10 budynków. W pierwszym etapie budowy powstanie 7 budynków pięciokondygnacyjnych, natomiast w drugim etapie 3 budynki. W każdym z nich zaprojektowano po 24 mieszkania o ciekawych opcjach aranżacyjnych i w najchętniej wybieranych metrażach. Poszczególne kondygnacje będą obsługiwane przez jedną klatkę schodową wyposażoną w cichobieżną, nowoczesną windę. W kondygnacji zerowej znajdą się garaże indywidualne. Uzupełnienie projektu stanowią: plac zabaw, mała architektura, zieleń nasadzona i zewnętrzne miejsca postojowe. Mieszkania od zaufanego dewelopera, takiego jak firma Loker, to gwarancja wysokiego standardu wykonania, bezpieczeństwa transakcji i profesjonalnej obsługi na każdym jej etapie. Inwestycja położona jest w intensywnie rozwijającej się dzielnicy Rumi – Biała Rzeka, tuż przy Porcie Rumia, z bogatą infrastruktura. W niedalekiej przyszłości w pobliżu powstanie planowany przystanek szybkiej kolej miejskiej.
Dostępne mieszkania w tej inwestycji
| Nazwa | Rzut | Pokoje | Powierzchnia | Piętro | Cena | Status |