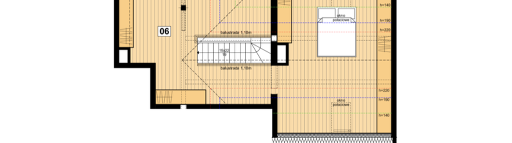
Nowe mieszkanie na sprzedaż 4 pokoje Śrem, 92,20 m2, 2 piętro - nr L-33
Oferta sprzedaży od Green Park Resort
Śrem, ul. Mickiewicza 21

Główne cechy mieszkania
Ważne informacje
Mieszkanie 4 pokojowe
Dodatkowe informacje
Udogodnienia

Winda
Inwestycja
Mickiewicza 21 Residence
wielkopolskie, śremski, Śrem
Nowa inwestycja przy ul. Mickiewicza to 40 mieszkań zaprojektowanych z myślą o rodzinach, parach i osobach starszych, które cenią spokój, wygodę i doskonałą lokalizację. Kameralne osiedle wyróżnia się elegancką architekturą, funkcjonalnym układem mieszkań oraz dużymi przeszkleniami, balkonami i tarasami. Bliskość rzeki Warty i terenów zielonych, a także rozwinięta infrastruktura miejska zapewniają idealną równowagę między życiem w mieście a relaksem w naturze. Zamknięte osiedle z windą, monitoringiem, miejscami postojowymi i komórkami lokatorskimi gwarantuje komfort i bezpieczeństwo.
Dostępne mieszkania w tej inwestycji
| Nazwa | Rzut | Pokoje | Powierzchnia | Piętro | Cena | Status |