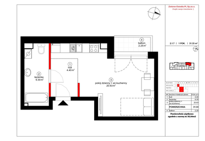
Nowe mieszkanie na sprzedaż 1 pokój Sulejówek, 30,84 m2, 1 piętro - nr 7
Oferta sprzedaży od Zielone Osiedla PL Sp. z o.o.
Sulejówek, ul. Czynu Społecznego 65F

Główne cechy mieszkania
Ważne informacje
Mieszkanie 1 pokojowe
Dodatkowe informacje
Udogodnienia

Plac zabaw

Wózkarnia
Przyroda

Las

Park
Inwestycja
Dostępne mieszkania w tej inwestycji
| Nazwa | Rzut | Pokoje | Powierzchnia | Piętro | Cena | Status |