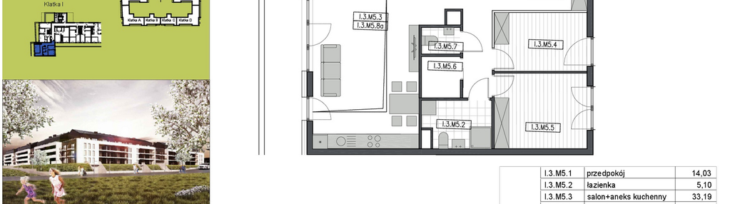
Nowe mieszkanie na sprzedaż 4 pokoje Szczecin Północ, 103,90 m2, 3 piętro - nr I3M5
Oferta sprzedaży od Tomaszewicz Development Sp. z o.o.
Szczecin, Północ, Stołczyn, ul. Bronisława Sobola (7,3km od centrum Szczecina)

Główne cechy mieszkania
Opis nieruchomości o powierzchni 103,90 m2
Mieszkanie w inwestycji: Jaśminowe Wzgórze - etap II
Ważne informacje
Mieszkanie 4 pokojowe
Dodatkowe informacje
Udogodnienia

Winda

Patio / Dziedziniec

Plac zabaw
Przyroda

Park

Las

Rezerwat przyrody

Rzeka
Inwestycja
Jaśminowe Wzgórze - etap II
zachodniopomorskie, Szczecin, Północ, Stołczyn
Osiedle położone jest w prężnie rozwijającej się północnej dzielnicy Szczecina. W najbliższych latach miasto zrealizuje na jej terenie trzeci etap Trasy Północnej w kierunku Polic tj. połączenie jej z Szosą Polską. Łatwo dotrzeć do osiedla komunikacją miejską. Dojeżdżają tu wszystkie autobusy kursujące do Polic. W sąsiedztwie znajdują się przystanki autobusów nr 101 i 107. Samochodem z centrum dojedziemy do domu w 15 minut. W odległości około 1 km znajduje się Folwark Podkowa, gdzie można doświadczyć kontaktu z naturą, a także zobaczyć wiele gatunków rzadko spotykanych zwierząt i ptaków. Na terenie Folwarku znajduje się również stadnina koni, w której prowadzone są lekcje jazdy konnej. Nieco bliżej znajdują się Park leśny Kupały zwany również uroczyskiem oraz zespół przyrodniczo-krajobrazowy Wodozbiór. Są to urokliwe miejsca, idealne na spacery oraz wszelką aktywność na świeżym powietrzu
Dostępne mieszkania w tej inwestycji
| Nazwa | Rzut | Pokoje | Powierzchnia | Piętro | Cena | Status |