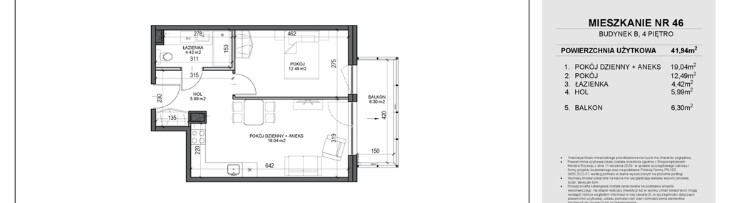
Nowe mieszkanie na sprzedaż 2 pokoje Toruń, 41,94 m2, 4 piętro - nr B46
Oferta sprzedaży od Budlex Sp. z o.o.
Toruń, ul. Batorego (2,3km od centrum Torunia)

Główne cechy mieszkania
Ważne informacje
Mieszkanie 2 pokojowe
Dodatkowe informacje
Udogodnienia

Rowerownia

Plac zabaw

Winda
Inwestycja
Nowe Batorego 2
kujawsko-pomorskie, Toruń
Nowy etap. Nowy poziom życia. Drugi etap Nowego Batorego to zupełnie nowa odsłona projektu, zaprojektowana z myślą o komforcie i nowoczesnym stylu życia. Wyróżnia się świeżym podejściem do architektury, funkcjonalnymi rozwiązaniami oraz dbałością o detale. W ofercie znajdzie się szeroki wybór praktycznych, kompaktowych mieszkań — idealnych dla singli, par oraz osób poszukujących lokalu inwestycyjnego. Przemyślane układy pomieszczeń pozwalają w pełni wykorzystać dostępną przestrzeń, gwarantując wygodę każdego dnia. Żyj wygodniej. Na Batorego Bliskość Trasy Średnicowej i ulicy Tadeusza Kościuszki sprawia, że ta lokalizacja idealnie odpowiada na potrzeby osób aktywnych zawodowo i studentów — zapewniając szybkie połączenia z najważniejszymi punktami miasta. W bezpośrednim sąsiedztwie dostępna jest pełna infrastruktura miejska: sklepy, szkoły, przedszkola, usługi czy przychodnie. Rowerzyści z pewnością docenią bliskość licznych tras, które sprzyjają zarówno rekreacyjnym przejażdżkom, jak i wygodnym dojazdom do różnych części Torunia. To również doskonałe miejsce na codzienny relaks — Mokrzańskie Stawy i okoliczna zieleń zachęcają do spacerów, aktywności na świeżym powietrzu i kontaktu z naturą. Wyróżniki: • Strefa zabawy i rekreacji na terenie osiedla • Stacja naprawy rowerów • Miejsca parkingowe naziemne i podziemne • Cichobieżne windy • Dyfuzor zapachów i muzyka w holach • Oświetlenie LED z czujnikami ruchu • Monitoring Przemyślany projekt Osiedle zaprojektowano z myślą o maksymalnej wygodzie i funkcjonalności codziennego życia. Dwa nowoczesne budynki tworzą harmonijny układ urbanistyczny, otwierający się na atrakcyjnie zaaranżowane części wspólne. Przemyślany podział ruchu kołowego i pieszego, a także obecność zielonych stref wypoczynku, placu zabaw i terenów rekreacyjnych potwierdzają kompleksowe podejście do potrzeb mieszkańców. Elewacje utrzymane w jasnej, ponadczasowej kolorystyce z uzupełniającymi je ciemnymi akcentami nadają inwestycji elegancki charakter i zapewniają trwałą, estetyczną formę na lata. Nowoczesny wygląd dopełniają szklane balustrady balkonów oraz drewnopodobne przegrody między nimi, które zapewniają mieszkańcom większą prywatność i podkreślają wysoką jakość architektury. Nowoczesne hole z połączeniem czerni i drewna W częściach wspólnych postawiono na nowoczesny, reprezentacyjny design. Połączenie czerni i naturalnego drewna nadaje holom wyjątkowy charakter — stylowy, a jednocześnie ciepły i przyjazny. Ta dopracowana w każdym detalu przestrzeń dba o dobre pierwsze wrażenie i zapewnia mieszkańcom komfort w codziennym powrocie do domu.
Dostępne mieszkania w tej inwestycji
| Nazwa | Rzut | Pokoje | Powierzchnia | Piętro | Cena | Status |