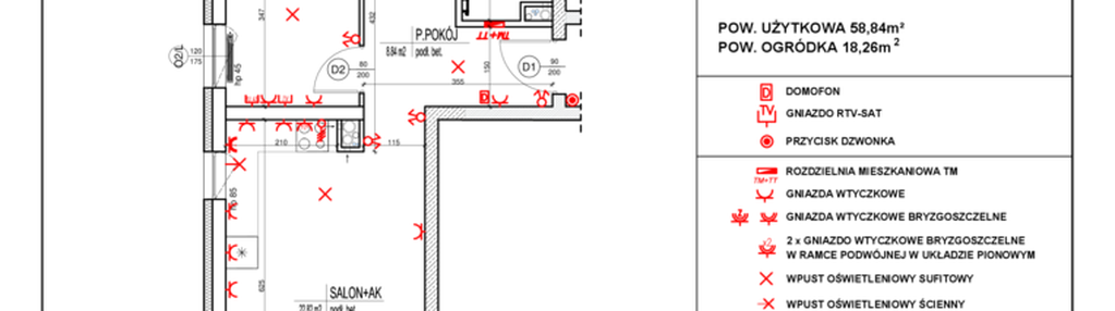
Nowe mieszkanie na sprzedaż 3 pokoje Toruń, 58,84 m2, parter - nr 24_47
Oferta sprzedaży od Apro Investment Sp. z o.o.
Toruń, ul. Cztery Pory Roku (3,2km od centrum Torunia)

Główne cechy mieszkania
Ważne informacje
Mieszkanie 3 pokojowe
Dodatkowe informacje
Udogodnienia

Winda

Rowerownia

Wózkarnia

Plac zabaw
Przyroda

Las
Inwestycja
Osiedle 4 Pory Roku - Etap VIII
kujawsko-pomorskie, Toruń
Osiedle 4 Pory Roku to wyjątkowy projekt na skalę Torunia gdzie oprócz dopracowania tak charakterystycznych dla nas elementów jak architektura, funkcjonalne rozkłady mieszkań, duże przeszklenia, dodaliśmy nowy pomysł na zagospodarowanie terenu. W ramach zagospodarowania terenu przewidzieliśmy zieleń, która zdominuje przestrzeń osiedla. Znaczące nakłady na jej realizację i dodatkowy nadzór nad nią, mają zagwarantować zgodność projektu z ostatecznym wykonaniem. O każdej porze roku odpowiednie partie roślinności, rozwiną swoją paletę kolorów. Byliny, jako podstawowe elementy, zaprojektowane w formie rzek przepływających przez kolejne etapy inwestycji, staną się ich łącznikiem, tworząc spójną całość.
Dostępne mieszkania w tej inwestycji
| Nazwa | Rzut | Pokoje | Powierzchnia | Piętro | Cena | Status |