Nowe mieszkanie na sprzedaż 2 pokoje Toruń, 31,75 m2, parter - nr 3.B.0.01
Oferta sprzedaży od Murapol Real Estate
Toruń, ul. Jana Heweliusza (4,7km od centrum Torunia)

Główne cechy mieszkania
Ważne informacje
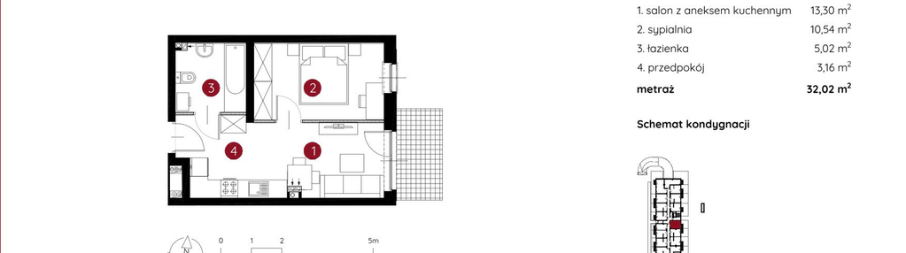
Mieszkanie 2 pokojowe
Dodatkowe informacje
Udogodnienia

Inteligentny dom

Usługi w budynku

Winda
Inwestycja
Murapol Helio
kujawsko-pomorskie, Toruń
WYBRANE MIESZKANIA W PAKIECIE Z MIEJSCEM POSTOJOWYM W CENIE 15000 ZŁ- 44000 ZŁ I/LUB KOMÓRKĄ LOKATORSKĄ W CENIE 8840 ZŁ-24760 ZŁ . O SZCZEGÓŁY ZAPYTAJ DEWELOPERA. Murapol Helio to wymarzone miejsce dla osób pragnących żyć nowocześnie wśród szumu drzew, otoczeni rozległymi leśnymi terenami sprzyjającymi rekreacji na świeżym powietrzu. Inwestycja została zaprojektowana na prężnie rozwijającym się osiedlu Jar przy ul. Heweliusza, a także w sąsiedztwie nowej pętli tramwajowej doskonale łączącej dzielnicę z centrum miasta. Zainspirowani wybitnymi astronomami w postaci Jana Heweliusza, Mikołaja Kopernika oraz ich osiągnięciami stworzyliśmy projekt przecierający szlaki w północnej części Torunia. W ramach inwestycji zaplanowaliśmy realizację czterech budynków, które wyróżnia kameralna i minimalistyczna architektura harmonijnie wkomponowująca się w naturalne otoczenie lasu. Na najwyższych kondygnacjach powstaną wyjątkowe dwupoziomowe lokale mieszkalne o przestronnym metrażu i przemyślanie zaaranżowanych układach. Kompaktowe 1-, 2- i 3-pokojowe mieszkania oraz zróżnicowane metraże od 26 do nawet 88 mkw. w przypadku lokali z antresolami to doskonała propozycja nie tylko dla rodzin z dziećmi, ale również singli czy par chcących na co dzień być blisko przyrody. Mieszkaj nowocześnie na toruńskim Jarze w Murapol Helio • Mieszkania na 2-piętrze są dwupoziomowe ze względu na zaprojektowane przestronne antresole o powierzchni nawet 49 mkw. Wysokość tych lokali sięga nawet 5,5 m! • Home Management System zainstalowany w budynkach inwestycji pozwala mieszkańcom korzystać z urządzeń smart home za pomocą aplikacji mobilnej, jak i manualnie. Możliwe jest m.in. sterowane ogrzewaniem, oświetleniem czy zaworami wody. • Wnętrza są dodatkowo zabezpieczane przed zanieczyszczeniami, alergenami, pyłkami roślin czy owadami dzięki pakietowi antysmogowemu. • Wysoki standard części wspólnych to kolejny wyróżniający element inwestycji. Klatki schodowe i korytarze zostaną wykończone przy użyciu trwałych płytek gresowych, dekoracyjnych paneli meblowych oraz energooszczędnej oprawy liniowej LED. W holach wejściowych zostaną zamontowane z kolei duże lustra oraz estetyczne skrzynki pocztowe. • Wybrukowane kostką tarasy z zielonymi ogródkami o powierzchni nawet 60 mkw. będą przynależeć do wszystkich mieszkań na parterach. • Mieszkania na piętrach będą posiadały nawet dwa balkony, a w przypadku wybranych lokali przestronne tarasy o pow. aż do 38 mkw. • Wysokie nasłonecznienie wnętrz zapewnią sięgające niemal od podłogi do sufitu okna portfenetrowe. • Stacja ładowania pojazdów elektrycznych na terenie osiedla pozwoli swobodnie korzystać z niskoemisyjnych środków transportu. • Lokale usługowe na terenie osiedla podniosą komfort mieszkańców z uwagi na bezpośredni dostęp do sklepu, zakładu fryzjerskiego czy salonu piękności. Profesjonalne siłownie z obciążeniem Murapol Gym. W duchu sportowej aktywności, tak niezbędnej do prawidłowego funkcjonowania organizmu, oddamy w ręce mieszkańców Murapol Gym, czyli siłownię wyposażoną w wysokiej jakości sprzęt umożliwiający regulację obciążenia. Dzięki temu rozwiązaniu zarówno amatorzy, jak i osoby zaawansowane będą mogły przeprowadzić trening angażujący wszystkie partie mięśniowe. A rozpoczynający dopiero swoją przygodę z profesjonalnym sprzętem otrzymają wsparcie w postaci darmowych wskazówek na urządzeniach, jak skutecznie trenować. Co oferuje Murapol Gym? • Szeroki zakres regulacji obciążenia • Dostępność 24/7 • Bezpieczny dla początkujących i profesjonalistów • Możliwość treningu tuż „pod domem” • Poprawa wydolności organizmu • Wszechstronny rozwój treningowy • Aktywność na świeżym powietrzu • Bezpłatne korzystanie z urządzeń
Dostępne mieszkania w tej inwestycji
| Nazwa | Rzut | Pokoje | Powierzchnia | Piętro | Cena | Status |