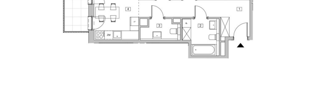
Nowe mieszkanie na sprzedaż 3 pokoje Kowale, 59,49 m2, 4 piętro - nr 3.4.54
Oferta sprzedaży od ATAL S.A.
gdański, Kowale, ul. Apollina (7km od centrum Gdańska)

Główne cechy mieszkania
Ważne informacje
Mieszkanie 3 pokojowe
Dodatkowe informacje
Udogodnienia

Winda

Wózkarnia

Plac zabaw
Inwestycja
ATAL Apollina II
pomorskie, gdański, Kowale
Osiedle ATAL Apollina to przytulna i nowoczesna inwestycja położona w malowniczych Kowalach. Lokalizacja ta oferuje przyszłym mieszkańcom idealne połączenie bliskości natury z udogodnieniami życia miejskiego. Pierwszy etap ATAL Apollina to jeden pięciopiętrowy budynek w którym zaprojektowano 60 mieszkań o metrażach od 31 do 76 m². W kolejnym etapie powstaną trzy pięciopiętrowe budynki z łącznie 180 mieszkaniami o zróżnicowanych układach i metrażach. Na terenie inwestycji znajdzie się również miejsce na zielony ogród deszczowy i plac zabaw dla najmłodszych. Do dyspozycji mieszkańców przewidziano również komórki lokatorskie, podziemną halę garażową oraz miejsca do przechowywania wózków. Znajdujące się w sąsiedztwie przedszkola, szkoły, centra handlowe i przystanki komunikacji miejskiej czynią tę lokalizację wyjątkowo praktyczną dla codziennego życia. Bliskość drogi ekspresowej S7 zapewnia sprawną komunikację z resztą Trójmiasta oraz umożliwia szybki wyjazd poza jego granice. Dzielnica Kowale jest atrakcyjna zarówno dla tych, którzy cenią życie w mieście, jak i miłośników natury. W zaledwie 30 minut można dostać się do historycznego centrum Gdańska i cieszyć się spacerami wzdłuż Motławy lub odpoczywać na plaży w Brzeźnie. Dla szukających spokoju wśród zieleni, otoczenie ATAL Apollina zaprasza do odkrywania Wąwozu Potoku Kowalskiego, a dla aktywnych – do korzystania z uroków Rezerwatu przyrody “Bursztynowa Góra”. Osiedle ATAL Apollina to idealne miejsce dla osób, które poszukują harmonii pomiędzy życiem w otoczeniu natury, a korzyściami płynącymi z życia miejskiego.
Dostępne mieszkania w tej inwestycji
| Nazwa | Rzut | Pokoje | Powierzchnia | Piętro | Cena | Status |