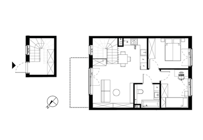
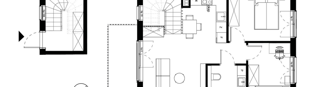
Nowe mieszkanie na sprzedaż 3 pokoje Skórzewo, 49,31 m2, 1 piętro - nr 28.2
Oferta sprzedaży od Twoje M
poznański, Skórzewo, ul. Fryderyka Chopina

Główne cechy mieszkania
Ważne informacje
Mieszkanie 3 pokojowe
Inwestycja
Komfortia IV
wielkopolskie, poznański, Skórzewo
Inspiracją do powstania osiedla Komfortia IV były potrzeby naszych klientów. Ustawne i przestronne mieszkania o optymalnym metrażu, poczucie komfortu i intymności oraz doskonała lokalizacja w dynamicznie rozwijającym się Skórzewie to główne atuty naszej inwestycji. Osiedle Komfortia IV to sześć powtarzalnych, dwukondygnacyjnych szeregów z mieszkaniami o powierzchni 41 m2 lub 49 m2 oraz z bliźniakami o metrażu 69 m2. Mieszkania w bliźniakach to lokale czteropokojowe z ogrodami. Usytuowane są na szczytach szeregów, co zapewnia prywatność i poczucie komfortu. Tutaj każdy znajdzie coś dla siebie. Termin realizacji: Etap I, czyli lokale od 1-1 do 10-1 --> gotowe do odbioru Etap II, czyli lokale od 11-1 do 20-1--> II kwartał 2026 r. Etap III, czyli lokale od 21-1 do 30-1 --> II kwartał 2026 r. https://youtu.be/5p3DQJNSbPU?si=BdNQ3RLOqCNLHL8l
Dostępne mieszkania w tej inwestycji
| Nazwa | Rzut | Pokoje | Powierzchnia | Piętro | Cena | Status |