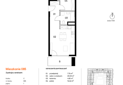
Nowe mieszkanie na sprzedaż 2 pokoje Mysiadło, 47,10 m2, 1 piętro - nr C085
Oferta sprzedaży od PROFBUD
piaseczyński, Mysiadło, ul. Olimpijska


Główne cechy mieszkania
Ważne informacje
Mieszkanie 2 pokojowe
Dodatkowe informacje
Udogodnienia

Usługi w budynku

Plac zabaw

Boisko

Rowerownia

Korty tenisowe

Własny akwen wodny
Przyroda

Jezioro

Las

Park
Inwestycja

Miasto Polskich Mistrzów Olimpijskich
mazowieckie, piaseczyński, Mysiadło
Witaj w Mieście Polskich Mistrzów Olimpijskich – miejscu, gdzie codzienność przenika duch sportu i pasja. To przestrzeń, która budzi ambicje, inspiruje do marzeń i motywuje do działania. Przyjaźń, szacunek, samodoskonalenie się tworzą tu unikalne miejsce do życia. Pierwszy etap – „Paryż” – to harmonia zieleni i elegancji, inspirowana magią Champs-Élysées. Spacerując zielonym deptakiem, poczujesz atmosferę paryskiej swobody, gdzie kawiarenki zapraszają na chwilę wytchnienia. Planowana Aleja Polskich Mistrzów Olimpijskich, biegnąca wzdłuż dzielnicy, dedykowana olimpijczykom, będzie hołdem dla sportowych poświęceń i sukcesów na światowej arenie.
Dostępne mieszkania w tej inwestycji
Nazwa | Rzut | Pokoje | Powierzchnia | Piętro | Cena | Status |