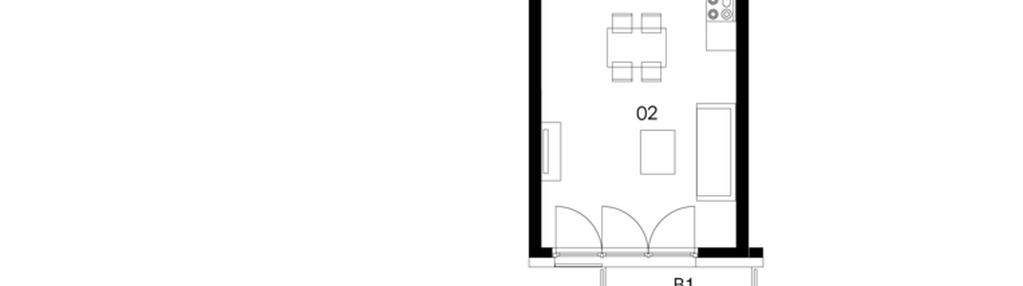
Nowe mieszkanie na sprzedaż 3 pokoje Mysiadło, 66,84 m2, 4 piętro - nr A.D121
Oferta sprzedaży od PROFBUD
piaseczyński, Mysiadło, ul. Olimpijska

Główne cechy mieszkania
Ważne informacje
Mieszkanie 3 pokojowe
Dodatkowe informacje
Udogodnienia

Boisko

Plac zabaw

Rowerownia

Usługi w budynku

Własny akwen wodny

Korty tenisowe
Przyroda

Las

Jezioro

Park
Inwestycja
Miasto Polskich Mistrzów Olimpijskich II
mazowieckie, piaseczyński, Mysiadło
Witaj w Mieście Polskich Mistrzów Olimpijskich – miejscu, gdzie codzienność przenika duch sportu i pasja. To przestrzeń, która budzi ambicje, inspiruje do marzeń i motywuje do działania. Przyjaźń, szacunek, samodoskonalenie się tworzą tu unikalne miejsce do życia. „Paryż” – to harmonia zieleni i elegancji, inspirowana magią Champs-Élysées. Spacerując zielonym deptakiem, poczujesz atmosferę paryskiej swobody, gdzie kawiarenki zapraszają na chwilę wytchnienia. Planowana Aleja Polskich Mistrzów Olimpijskich, biegnąca wzdłuż dzielnicy, dedykowana olimpijczykom, będzie hołdem dla sportowych poświęceń i sukcesów na światowej arenie.
Dostępne mieszkania w tej inwestycji
| Nazwa | Rzut | Pokoje | Powierzchnia | Piętro | Cena | Status |