Nowe mieszkanie na sprzedaż 3 pokoje Biedrusko, 68,60 m2, parter - nr 6A.1
Oferta sprzedaży od Przedsiębiorstwo Inwestycyjno - Budowlane BTM Sp.z o.o.
poznański, Biedrusko, ul. Parkowa 6A

Główne cechy mieszkania
Opis nieruchomości o powierzchni 68,60 m2
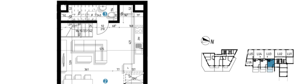
Mieszkanie w inwestycji: Parkowa 6AC - ETAP III
Mieszkanie trzypokojowe, dwupoziomowe, gotowe do odbioru.
Lokal o podwyższonym standardzie wykończenia:
- Na ścianach i sufitach położono i zagruntowano gładzie szpachlowe, które wystarczy pomalować.
Takie przygotowanie powierzchni pozwala zaoszczędzić czas i pieniądze.
- Na oknach parteru zamontowano zewnętrzne rolety elektryczne.
- Dodatkowo w mieszkaniu nr 1 zamontowane zostały solidne drewniane schody prowadzące do części prywatnej mieszkania.
Mieszkanie składa się z: przedpokoju, pokoju z aneksem kuchennym i łazienki na parterze oraz z dwóch sypialni, korytarza i łazienki na piętrze.
Na parterze do mieszkania przynależy taras zielony o powierzchni 18,2 m2.
Na piętrze z sypialni można wyjść na balkon o pow. 5,3 m2.
Wystawa okien na wschód.
Wraz z lokalami mieszkalnymi obligatoryjnie sprzedajemy miejsca postojowe w hali garażowej, co pozwoli rozwiązać problem ze znalezieniem miejsca do zaparkowania oraz parkowaniem aut w miejscach niedozwolonych.
Ważne informacje
Mieszkanie 3 pokojowe
Dodatkowe informacje
Udogodnienia

Plac zabaw

Winda
Przyroda

Las

Park
Inwestycja
Dostępne mieszkania w tej inwestycji
| Nazwa | Rzut | Pokoje | Powierzchnia | Piętro | Cena | Status |