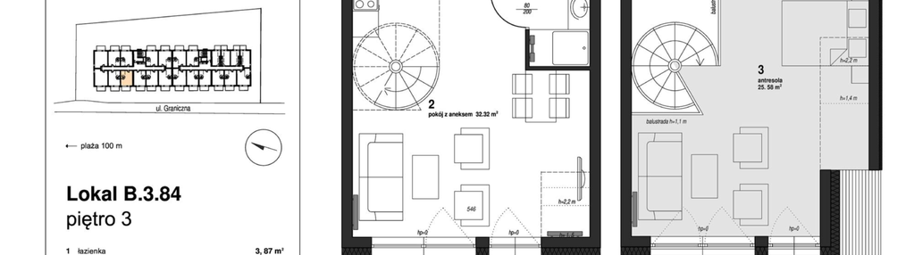
Nowe mieszkanie na sprzedaż 1 pokój Ustronie Morskie, 35,94 m2, 3 piętro - nr B.3.84
Oferta sprzedaży od Area Development
kołobrzeski, Ustronie Morskie, ul. Graniczna 4

Główne cechy mieszkania
Ważne informacje
Mieszkanie 1 pokojowe
Dodatkowe informacje
Udogodnienia

Klimatyzacja

Rowerownia

Winda

Usługi w budynku

Patio / Dziedziniec

Inteligentny dom

Basen

Plac zabaw
Przyroda

Rezerwat przyrody

Morze
Inwestycja
Morzlive
zachodniopomorskie, kołobrzeski, Ustronie Morskie
Morzlive to nowoczesny kompleks wypoczynkowy, który powstaje w spokojnej części Ustronia Morskiego, w sąsiedztwie obszaru Natura 2000 i zaledwie 100 m od plaży Bałtyku. Niecały kilometr dzieli ją od centrum miasta, do którego przejść można nadmorską promenadą. Pierwszy etap projektu to 89 wygodnych apartamentów i 2 lokale usługowe. Zaplanowano tu wiele udogodnień m.in.: • podziemną halę garażową • komórki lokatorskie • przestronną rowerownię • nowoczesną windę • monitoring części wspólnych • dziedziniec z placem zabaw oraz stołem do tenisa stołowego, oddzielony od ruchu samochodowego • w przestronnym lobby bezobsługowy system wymiany kluczy do mieszkań • klimatyzację we wszystkich lokalach • pakiet bezpieczeństwa systemu inteligentnego domu • każde mieszkanie posiada przestronny balkon, taras lub ogródek Kolejne etapy inwestycji uzupełnią jej strefę rekreacyjną o zewnętrzny basen, boisko do gry w siatkówkę plażową oraz klub malucha. Istnieje możliwość skorzystania z oferty wykończenia mieszkania pod klucz. Apartamenty sprzedajemy z 8% VATem.
Dostępne mieszkania w tej inwestycji
| Nazwa | Rzut | Pokoje | Powierzchnia | Piętro | Cena | Status |