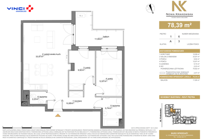
Nowe mieszkanie na sprzedaż 3 pokoje Warszawa Włochy, 78,39 m2, 1 piętro - nr A.1.6
Oferta sprzedaży od VINCI Immobilier Polska
Warszawa, Włochy, Raków, al. Krakowska 281 (5,1km od centrum Warszawy)

Główne cechy mieszkania
Ważne informacje
Mieszkanie 3 pokojowe
Dodatkowe informacje
Udogodnienia

Patio / Dziedziniec

Plac zabaw
Przyroda

Park
Inwestycja
Nowa Krakowska
mazowieckie, Warszawa, Włochy, Raków
Nowa Krakowska to zespół budynków w którym znajduje się 208 mieszkań o zróżnicowanych metrażach od 29 do 89 mkw. Do wyboru są zarówno klimatyczne kawalerki, wygodne i komfortowe mieszkania dwupokojowe jak i przestronne mieszkania trzy- i czteropokojowe. Do każdego mieszkania przynależy balkon lub loggia, a do wybranych tarasy i ogródki. Na parterze budynku znajduje się przestrzeń dla lokali usługowych, a dla zmotoryzowanych mieszkańców przygotowane zostały miejsca postojowe w garażu podziemnym. W ramach kompleksu zaplanowano wiele udogodnień między innymi: komórki lokatorskie, plac zabaw, wewnętrzny dziedziniec oraz wiatry rowerowe.
Dostępne mieszkania w tej inwestycji
| Nazwa | Rzut | Pokoje | Powierzchnia | Piętro | Cena | Status |